| インナー式ガレージ あります。 | |||
| 物件コード | 00011-100160 | ||
|---|---|---|---|
| 物件名 | 新保1『中島貸家』 6月より可能になります | ||
| 交通 | 駅:信越線 北長岡駅から徒歩15分、バス:新保1丁目から徒歩3分 | ||
| 所在地 | 長岡市新保1丁目16-23 | ||
| 物件種別 | アパート・マンション・一戸建て | ||
| 総戸数 | - | ||
| 構造 | 木造 | 階建 | 地上2階建 |
| 所在階/階数 | 1階/2階 | 号室 | 1号室 |
| 面積 | 153.45㎡ (46.41坪) | 方位 | 指定なし |
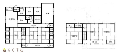
| 間取り | 6DK
追い焚き機能/シャワー |
||
| 賃料 | 6.5万円/月
|
管理費 | - |
| 礼金 | -
|
敷金 | 2ヶ月
|
| ほか初期費用 | - | その他諸費用 | - |
| 更新料 | - | 火災(家財)保険 |
15,000円
加入の事 |
| 共益費 | - | 町内費 | - |
| 駐車場 | - | バイク料金 | - |
| 鍵交換費 | - | 清掃料 | - |
| 更新事務手数料 | - | ||
| 保証区分 |
連帯保証人+緊急連絡先 |
||
| 保証会社 |
区分:指定なし - |
||
| 連帯保証人 |
区分:要 - |
||
| 仲介手数料 |
71,500円
|
||
| 築年月 | 1969年6月(築56年) | ||
| 利用制限 | ペット:不可、楽器:不可 | ||
| 学校区 | 富曾亀小学校(664m)・東北中学校(753m) | ||
| 設備 | 駐車場1台無料、追いだき機能付き、暖房便座、洗面所独立、エアコン2基、都市ガス、洗濯機置場 室内、脱衣所、各居室照明、即入居可 | ||
| 入居時期 | 相談 | ||
| 取引態様 | 代理 | ||
| 備考 | 令和8年6月より入居可能になります | ||
| 手数料負担割合/配分割合 | 貸主:-% 借主:100% / 元付:50% 客付:50% | ||
| 情報登録日 | 2026/04/07 | 次回更新予定日 | 2026/05/01 |
|
|
|
|
|
| TEL: | 0258-24-0623 |
|---|---|
| 所在地: | 新潟県長岡市蔵王2丁目4番17号 |
| 交通: | JR北長岡駅 |
| 営業時間: | 8:30~17:30/定休日:第2・4土曜・日曜・祭日 |
| 免許番号: | 新潟県知事(2)第5364号 |
| 所属団体名: | 新潟県宅地建物取引業協会 長岡支部 |
| 取引態様: | 代理 |