物件掲載企業数:299|賃貸物件:3,030件|売買物件:3,231件|今週の登録物件:298
閲覧中のブラウザ(インターネットエクスプローラー)は非推奨ブラウザです。
物件が正しく表示されなかったり、正しく検索されない場合があります。最新のブラウザ(Google Chrome・Edgeなど)にてご利用お願いいたします。
  

新潟県長岡市大山2丁目6-16 アパート 2LDK 9万円の物件情報

物件名
所在地
面積
間取り
所在階
築年数
方位
賃料
管理費等
共益費
敷金
保証金
礼金
種別
構造
ピフォアカルスⅣ
2号室
新潟県長岡市大山2丁目6-16
82.63㎡
(24.99坪)
2LDK
1階
2ヶ月
指定なし
9万円
なし
なし
2ヶ月
なし
1ヶ月
アパート・マンション・一戸建て
木造
  • ピフォアカルスⅣ
    有限会社 五十嵐商事
  • この物件を問い合わせる/無料
  • TEL: 0258-28-1414

物件画像

外観 間取り
物件画像
※画像クリックで拡大表示
外観
物件画像
※画像クリックで拡大表示
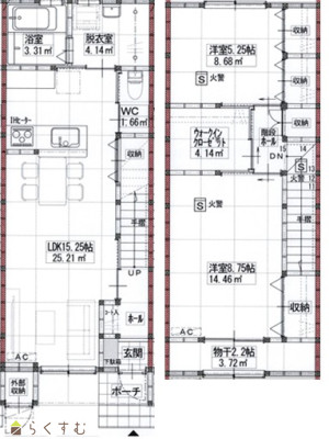
間取り
詳細画像


物件概要

物件コード 00004-101050
物件名 ピフォアカルスⅣ
交通 駅:上越新幹線 長岡駅から徒歩47分、バス:大山2丁目から徒歩2分
所在地 新潟県長岡市大山2丁目6-16
物件種別 アパート・マンション・一戸建て
総戸数 3戸
構造 木造 階建 地上2階建
所在階/階数 1階/2階 号室 2号室
面積 82.63㎡ /24.99坪 方位 指定なし
間取り 2LDK (洋室:8.75、5.25)
LDK15.25
ウォークインクローゼット、外部収納
賃料 9万円/月
管理費 -
礼金 1ヶ月
敷金 2ヶ月
ほか初期費用 - その他諸費用 -
更新料 - 火災(家財)保険 要加入
共益費 - 町内費 450円
駐車場
縦列2台
バイク料金 -
鍵交換費 - 清掃料 -
更新事務手数料 -
保証区分 連帯保証人+緊急連絡先
保証会社 区分:指定なし
-
連帯保証人 区分:要
-
仲介手数料 99,000円
築年月 2026年2月(築2ヶ月)
利用制限 ペット:不可、楽器:不可
学校区 希望が丘小学校(424m)・西中学校(406m)
設備 公園そば、外部専用物置、LDK12畳以上、メゾネット、築5年以内、駐車場2台無料、テンキー、システムキッチン、IHクッキングヒーター、バストイレ別、追いだき機能付き、ユニットバス、温水洗浄便座、洗面所独立、エアコン2基、都市ガス、公営水道、下水、サンルーム、全居室フローリング、洗濯機置場 室内、脱衣所、ウォークインクロゼット、クロゼット、シューズBOX、BS端子・アンテナ、TVモニター付きインターホン、インターネット無料、各居室照明、未入居、メゾネット式、新築・築浅物件
入居時期 即入居可
取引態様 仲介
備考 連帯保証人極度額500万円になります。
家財保険要加入  有限会社大川産業にて保険説明があります。
手数料負担割合/配分割合 貸主:0%   借主:100% / 元付:100%   客付:0%  
取り扱い会社

有限会社 五十嵐商事

新潟県長岡市三ツ郷屋2丁目5-23

情報登録日 2026/04/03 次回更新予定日 2026/04/21
  • ピフォアカルスⅣ
    有限会社 五十嵐商事
  • この物件を問い合わせる/無料
  • TEL: 0258-28-1414

この物件の地図・周辺情報・行政情報

この物件の周辺情報・行政情報を詳しく見る
【周辺情報】
物件の近くにあるコンビニや銀行・学校など、アイコン付のマップで詳しく表示できます!
【行政情報】
水道料や下水道料・ガス料金など、暮らしに関係のある情報を表示しています。
セブンイレブン 長岡北山2丁目店(コンビニ)まで520m
ウオロク 北山店(スーパー)まで540m
クスリのアオキ 大島店(ドラッグストア)まで620m
(株)大光銀行 希望が丘支店(銀行)まで50m
長岡希望が丘郵便局(郵便局)まで540m

※カメラのアイコンがある場合は、マウスをポイントするとその施設の画像がご覧いただけます。


担当取扱い店舗情報

取扱い店舗画像
有限会社 五十嵐商事
TEL: 0258-28-1414
所在地: 新潟県長岡市三ツ郷屋2丁目5-23
交通: 西長岡案内所バス停徒歩2分
営業時間: 平日9時~18時・土曜日10時~15時(3月休みなし)/定休日:日曜、祝祭日、年末年始(12/27~1/4)
免許番号: 新潟県知事(14)1645号 この会社の情報を詳しく見る
所属団体名: 新潟県宅地建物取引業協会 長岡支部
取引態様: 仲介
ホームページ: https://ikarashi-shouji.com/