| 物件コード | 00004-101050 | ||
|---|---|---|---|
| 物件名 | ピフォアカルスⅣ | ||
| 交通 | 駅:上越新幹線 長岡駅から徒歩47分、バス:大山2丁目から徒歩2分 | ||
| 所在地 | 新潟県長岡市大山2丁目6-16 | ||
| 物件種別 | アパート・マンション・一戸建て | ||
| 総戸数 | 3戸 | ||
| 構造 | 木造 | 階建 | 地上2階建 |
| 所在階/階数 | 1階/2階 | 号室 | 2号室 |
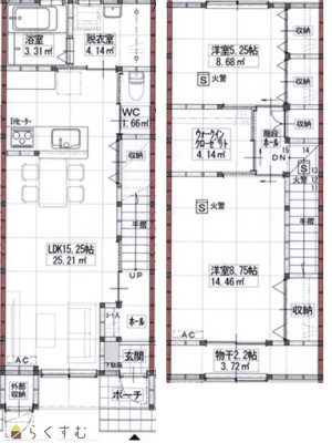
| 面積 | 82.63㎡ (24.99坪) | 方位 | 指定なし |
| 間取り | 2LDK (洋室:8.75、5.25)
LDK15.25 ウォークインクローゼット、外部収納 |
||
| 賃料 | 9万円/月
|
管理費 | - |
| 礼金 | 1ヶ月
|
敷金 | 2ヶ月
|
| ほか初期費用 | - | その他諸費用 | - |
| 更新料 | - | 火災(家財)保険 | 要加入 |
| 共益費 | - | 町内費 |
450円
|
| 駐車場 |
縦列2台 |
バイク料金 | - |
| 鍵交換費 | - | 清掃料 | - |
| 更新事務手数料 | - | ||
| 保証区分 |
連帯保証人+緊急連絡先 |
||
| 保証会社 |
区分:指定なし - |
||
| 連帯保証人 |
区分:要 - |
||
| 仲介手数料 |
99,000円
|
||
| 築年月 | 2026年2月(築2ヶ月) | ||
| 利用制限 | ペット:不可、楽器:不可 | ||
| 学校区 | 希望が丘小学校(424m)・西中学校(406m) | ||
| 設備 | 公園そば、外部専用物置、LDK12畳以上、メゾネット、築5年以内、駐車場2台無料、テンキー、システムキッチン、IHクッキングヒーター、バストイレ別、追いだき機能付き、ユニットバス、温水洗浄便座、洗面所独立、エアコン2基、都市ガス、公営水道、下水、サンルーム、全居室フローリング、洗濯機置場 室内、脱衣所、ウォークインクロゼット、クロゼット、シューズBOX、BS端子・アンテナ、TVモニター付きインターホン、インターネット無料、各居室照明、未入居、メゾネット式、新築・築浅物件 | ||
| 入居時期 | 即入居可 | ||
| 取引態様 | 仲介 | ||
| 備考 | 連帯保証人極度額500万円になります。 家財保険要加入 有限会社大川産業にて保険説明があります。 |
||
| 手数料負担割合/配分割合 | 貸主:0% 借主:100% / 元付:100% 客付:0% | ||
| 情報登録日 | 2026/04/03 | 次回更新予定日 | 2026/04/19 |
|
|
|
|
|
|
| TEL: | 0258-28-1414 |
|---|---|
| 所在地: | 新潟県長岡市三ツ郷屋2丁目5-23 |
| 交通: | 西長岡案内所バス停徒歩2分 |
| 営業時間: | 平日9時~18時・土曜日10時~15時(3月休みなし)/定休日:日曜、祝祭日、年末年始(12/27~1/4) |
| 免許番号: | 新潟県知事(14)1645号 |
| 所属団体名: | 新潟県宅地建物取引業協会 長岡支部 |
| 取引態様: | 仲介 |