物件掲載企業数:296|賃貸物件:3,532件|売買物件:3,315件|今週の登録物件:287
閲覧中のブラウザ(インターネットエクスプローラー)は非推奨ブラウザです。
物件が正しく表示されなかったり、正しく検索されない場合があります。最新のブラウザ(Google Chrome・Edgeなど)にてご利用お願いいたします。
  

全エリア貸事務所一覧

表示切替: 一覧表示 地図表示    並び替え:
画像 物件名
所在地
取扱店
面積
間取り
所在階
築年数
賃料
管理費等
共益費
敷金
保証金
礼金
山麓線すぐの好立地!
物件画像
物件画像
物件画像
物件画像
詳細☆お気に入り★お気に入り
ハロー心月
101号室
    新潟県上越市春日野1-5-16ハロー心月101
    (事務所)
    42㎡
    (12.7坪)
    -
    1階
    29年
    8万円
    なし
    なし
    2ヶ月
    なし
    なし
    写真たくさんあり!!
    駅近く☆駐車場5台分・消雪設備有り☆
    物件画像
    物件画像
    物件画像
    物件画像
    詳細☆お気に入り★お気に入り
    杉山ビル 1階事務所
      新潟県上越市中通町5番7号
      (事務所)
      107.62㎡
      (32.55坪)
      -
      1階
      40年
      8万円
      なし
      なし
      3ヶ月
      なし
      なし
      写真たくさんあり!!
      事務所仕様、長岡駅より徒歩圏内
      物件画像
      物件画像
      物件画像
      物件画像
      詳細☆お気に入り★お気に入り
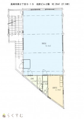
      北欧ビル事務所2階
        新潟県長岡市南町2丁目5-15北欧ビル 事務所
        (事務所)
        92.29㎡
        (27.91坪)
        -
        2階
        不詳
        8万円
        なし
        なし
        2ヶ月
        なし
        なし
        写真たくさんあり!!
        南吉田駅、116号線、Next Generation Townにほど近い開発が進んでいるエリアに建つ事務所です。賃料は8万円(税込み)です。5月1日より内覧も可能ですのでお気軽にご連絡ください。
        物件画像
        物件画像
        物件画像
        物件画像
        詳細☆お気に入り★お気に入り
        燕市吉田貸事務所
          新潟県燕市吉田西太田785番地18
          (事務所)
          238.38㎡
          (72.1坪)
          -
          -
          29年
          8万円
          なし
          なし
          3ヶ月
          なし
          なし
          写真たくさんあり!!
          ◆駐車場は敷地内に3台可能。
          物件画像
          物件画像
          物件画像
          物件画像
          詳細☆お気に入り★お気に入り
          南本町1丁目貸事務所兼店舗
          0号室
            新潟県上越市南本町1丁目5-27
            (事務所)
            47㎡
            (14.21坪)
            -
            1階
            12年
            8万円
            なし
            なし
            1ヶ月
            なし
            なし
            写真たくさんあり!!
            長岡駅にほど近い貸事務所
            物件画像
            物件画像
            物件画像
            物件画像
            詳細☆お気に入り★お気に入り
            石丸貸事務所
              新潟県長岡市南町1丁目9番21号
              (事務所)
              99.17㎡
              (29.99坪)
              -
              2階
              56年
              8万円
              なし
              なし
              3ヶ月
              なし
              なし
              写真たくさんあり!!
              上越の真ん中にあるテナントビル
              物件画像
              物件画像
              物件画像
              物件画像
              詳細☆お気に入り★お気に入り
              木田中央ビル
                新潟県上越市木田2丁目7-23
                (事務所)
                38.86㎡
                (11.75坪)
                -
                2階
                44年
                8.58万円
                なし
                なし
                2ヶ月
                なし
                1ヶ月
                写真たくさんあり!!
                物件画像
                物件画像
                物件画像
                物件画像
                詳細☆お気に入り★お気に入り
                早川ビル 2F
                  新潟県長岡市喜多町304-2
                  (事務所)
                  60.98㎡
                  (18.44坪)
                  -
                  2階
                  46年
                  8.8万円
                  なし
                  なし
                  3ヶ月
                  なし
                  1ヶ月
                  物件画像
                  物件画像
                  物件画像
                  物件画像
                  詳細☆お気に入り★お気に入り
                  棚橋不動産 関東町ビル(旧斉木ビル)
                  301号室
                    新潟県長岡市関東町3番地9
                    (事務所)
                    78.42㎡
                    (23.72坪)
                    -
                    3階
                    52年
                    8.8万円
                    なし
                    なし
                    2ヶ月
                    なし
                    1ヶ月
                    県道沿いにある事務所の1階部分です。駐車場2台賃料に込。
                    物件画像
                    物件画像
                    物件画像
                    物件画像
                    詳細☆お気に入り★お気に入り
                    春日新田2丁目 貸事務所
                      新潟県上越市春日新田2丁目11番11号
                      (事務所)
                      121.3㎡
                      (36.69坪)
                      -
                      1階
                      45年
                      8.8万円
                      なし
                      なし
                      2ヶ月
                      なし
                      0.5ヶ月
                      写真たくさんあり!!
                      事務所の2階部分です。敷地内駐車場4台込みです!
                      物件画像
                      物件画像
                      物件画像
                      物件画像
                      詳細☆お気に入り★お気に入り
                      港町2丁目 貸事務所2階
                        新潟県上越市港町2-10-8
                        (事務所)
                        73.28㎡
                        (22.16坪)
                        -
                        2階
                        28年
                        8.8万円
                        なし
                        なし
                        16万円
                        なし
                        なし
                        写真たくさんあり!!
                        駐車場2台家賃込み !
                        物件画像
                        物件画像
                        物件画像
                        物件画像
                        詳細☆お気に入り★お気に入り
                        春日新田2丁目 貸事務所
                          新潟県上越市春日新田2丁目11-11
                          (事務所)
                          121.3㎡
                          (36.69坪)
                          -
                          1階
                          45年
                          8.8万円
                          なし
                          なし
                          2ヶ月
                          なし
                          0.5ヶ月
                          写真たくさんあり!!
                          人通り・車通りの多い488号線にある広めな事務所です!駐車場2台賃料込み★
                          物件画像
                          物件画像
                          物件画像
                          物件画像
                          詳細☆お気に入り★お気に入り
                          【人通り◎】春日新田貸事務所1F
                            新潟県上越市春日新田2丁目11-111F
                            (事務所)
                            121.3㎡
                            (36.69坪)
                            -
                            1階
                            45年
                            8.8万円
                            なし
                            なし
                            2ヶ月
                            なし
                            0.5ヶ月
                            写真たくさんあり!!
                            本町通りの貸事務所です!
                            物件画像
                            物件画像
                            物件画像
                            物件画像
                            詳細☆お気に入り★お気に入り
                            内山ビル2階
                              新潟県上越市本町5丁目3-26内山ビル2階
                              (事務所)
                              132.24㎡
                              (40坪)
                              -
                              2階
                              51年
                              8.8万円
                              なし
                              あり
                              2ヶ月
                              なし
                              なし
                              写真たくさんあり!!
                              物件画像
                              物件画像
                              物件画像
                              物件画像
                              詳細☆お気に入り★お気に入り
                              諸橋ビル 3階事務所
                              C号室
                                新潟県長岡市坂之上町2丁目3番地他
                                (事務所)
                                50.5㎡
                                (15.27坪)
                                -
                                3階
                                43年
                                8.8万円
                                5,500円/月
                                なし
                                2ヶ月
                                なし
                                なし
                                写真たくさんあり!!
                                約24坪の事務所です。
                                物件画像
                                物件画像
                                物件画像
                                物件画像
                                詳細☆お気に入り★お気に入り
                                東蔵王2丁目 『吉沢ビル 左棟 2階』
                                  新潟県長岡市東蔵王2-6-20
                                  (事務所)
                                  79.2㎡
                                  (23.95坪)
                                  -
                                  2階
                                  34年
                                  8.9万円
                                  なし
                                  なし
                                  2ヶ月
                                  なし
                                  なし
                                  写真たくさんあり!!
                                  幹線道路沿い交通アクセス良好!
                                  物件画像
                                  物件画像
                                  物件画像
                                  物件画像
                                  詳細☆お気に入り★お気に入り
                                  妙高市柳井田4丁目 貸事務所 2階
                                  2号室
                                    新潟県妙高市柳井田町4丁目11番16号
                                    (事務所)
                                    86.74㎡
                                    (26.23坪)
                                    -
                                    2階
                                    不詳
                                    9.438万円
                                    なし
                                    なし
                                    25.74万円
                                    なし
                                    なし
                                    写真たくさんあり!!
                                    事務所利用や、店舗としても利用できます。
                                    物件画像
                                    物件画像
                                    物件画像
                                    物件画像
                                    詳細☆お気に入り★お気に入り
                                    スノウッド鴨島貸店舗・事務所
                                      上越市鴨島1丁目3番48号
                                      (事務所)
                                      49.5㎡
                                      (14.97坪)
                                      -
                                      1階
                                      27年
                                      9.5万円
                                      なし
                                      あり
                                      3ヶ月
                                      なし
                                      なし
                                      写真たくさんあり!!
                                      物件画像
                                      物件画像
                                      物件画像
                                      物件画像
                                      詳細☆お気に入り★お気に入り
                                      棚橋不動産 関東町ビル(旧斉木ビル)
                                      201号室
                                        新潟県長岡市関東町3番地9
                                        (事務所)
                                        78.42㎡
                                        (23.72坪)
                                        -
                                        2階
                                        52年
                                        9.9万円
                                        なし
                                        なし
                                        2ヶ月
                                        なし
                                        1ヶ月
                                        主要道路沿い 2階貸事務所
                                        物件画像
                                        物件画像
                                        物件画像
                                        物件画像
                                        詳細☆お気に入り★お気に入り
                                        小千谷市城内4丁目ビル2階 貸事務所
                                        A号室
                                          新潟県小千谷市城内4丁目11番23号A室
                                          (事務所)
                                          65.52㎡
                                          (19.81坪)
                                          -
                                          2階
                                          25年
                                          9.9万円
                                          なし
                                          なし
                                          2ヶ月
                                          なし
                                          1ヶ月
                                          写真たくさんあり!!
                                          表示切替: 一覧表示 地図表示    並び替え:
                                          0件がマッチ
                                          基本条件
                                          物件種別 事務所
                                          賃料


                                          間取り
                                          所在階
                                          面積
                                          築年数
                                          方位
                                          おすすめ条件
                                          情報公開日
                                          0件がマッチ
                                          人気のあるこだわり条件