物件掲載企業数:300|賃貸物件:2,775件|売買物件:3,237件|今週の登録物件:262
閲覧中のブラウザ(インターネットエクスプローラー)は非推奨ブラウザです。
物件が正しく表示されなかったり、正しく検索されない場合があります。最新のブラウザ(Google Chrome・Edgeなど)にてご利用お願いいたします。
  

新潟県長岡市南町2丁目5-15北欧ビル 事務所 事務所 8万円の物件情報

事務所仕様、長岡駅より徒歩圏内

物件名
所在地
面積
間取り
所在階
築年数
方位
賃料
管理費等
共益費
敷金
保証金
礼金
種別
構造
北欧ビル事務所2階
新潟県長岡市南町2丁目5-15北欧ビル 事務所
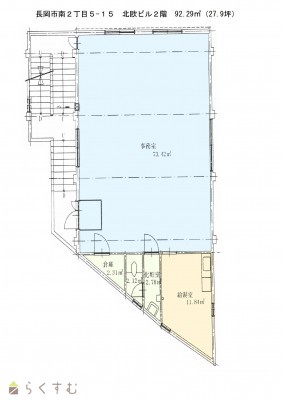
92.29㎡
(27.91坪)
-
2階
不詳
-
8万円
なし
なし
2ヶ月
なし
なし
事務所
鉄骨鉄筋コン
  • 北欧ビル事務所2階
    株式会社 和興不動産
  • この物件を問い合わせる/無料
  • TEL: 0258-35-1321

物件画像

外観 間取り
物件画像
※画像クリックで拡大表示
外観
物件画像
※画像クリックで拡大表示
間取り
詳細画像


物件概要

物件コード 00005-100152
物件名 北欧ビル事務所2階
交通 駅:上越新幹線 長岡から徒歩10分
所在地 新潟県長岡市南町2丁目5-15北欧ビル 事務所
物件種別 事務所
総戸数 -
構造 鉄骨鉄筋コン 階建 地上2階建
所在階/階数 2階/2階 号室 -
面積 92.29㎡ /27.91坪 方位 -
間取り -
賃料 8万円/月
管理費 -
礼金 -
敷金 2ヶ月
ほか初期費用 - その他諸費用 -
更新料 - 火災(家財)保険 要加入
共益費 - 町内費 -
駐車場 近隣別途契約 バイク料金 -
鍵交換費 - 清掃料 -
更新事務手数料 -
保証区分 連帯保証人のみ
保証会社 区分:指定なし
-
連帯保証人 区分:要
-
仲介手数料 88,000円
築年月 不詳
利用制限 -
学校区 千手小学校(435m)・南中学校(296m)
設備 2階以上
入居時期 即入居可
取引態様 仲介
備考 ※駐車場、別途契約10,000円
手数料負担割合/配分割合 貸主:0%   借主:100% / 元付:50%   客付:50%  
取り扱い会社

株式会社 和興不動産

新潟県長岡市旭町2-3-1

情報登録日 2026/02/16 次回更新予定日 2026/05/01
  • 北欧ビル事務所2階
    株式会社 和興不動産
  • この物件を問い合わせる/無料
  • TEL: 0258-35-1321

この物件の地図・周辺情報・行政情報

この物件の周辺情報・行政情報を詳しく見る
【周辺情報】
物件の近くにあるコンビニや銀行・学校など、アイコン付のマップで詳しく表示できます!
【行政情報】
水道料や下水道料・ガス料金など、暮らしに関係のある情報を表示しています。

担当取扱い店舗情報

取扱い店舗画像
株式会社 和興不動産
TEL: 0258-35-1321
所在地: 新潟県長岡市旭町2-3-1
交通: 長岡駅より徒歩8分
営業時間: 9:00~18:00/定休日:日曜・祝日(事前予約で日曜・祝日のご案内可能です)
免許番号: 新潟県知事第(16)0387号 この会社の情報を詳しく見る
所属団体名: 全国宅地建物取引業保証協会
取引態様: 仲介
ホームページ: http://www.wako-re.info