0
城東O貸家 詳細
外観
外観
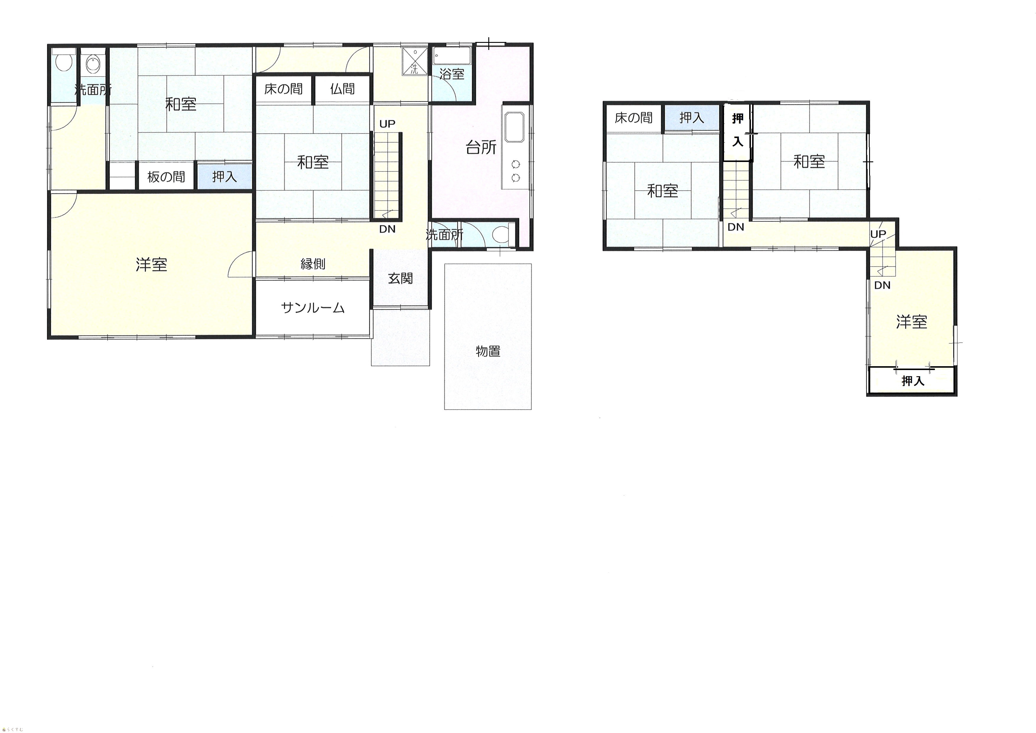
間取り
間取り図
その他の画像
和室1
DK
洋室1
廊下
トイレ
ユニットバス
手洗い
収納
和室2
地図画像
物件詳細へ戻る
協会の概要
|
プライバシーポリシー
|
PC版
Copyright(C)柏崎不動産業協会.
All Rights Reserved.