0
柏崎市諏訪町3階建 詳細
外観
外観
間取り
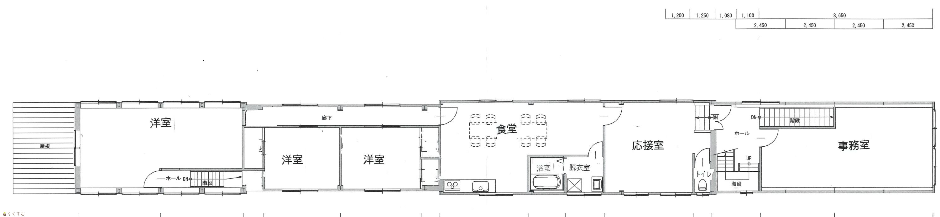
1階平面図
その他の画像
2階平面図
3階平面図
1階倉庫スペース(駐車可能)
1階倉庫スペース(クレーン有)
2階事務所スペース ①
2階事務所スペース ②
2階事務所スペース ③
ダイニングキッチン
ダイニングキッチン ②
浴室
トイレ
洗面脱衣
ホール
リビング ①
リビング ②
居室 ①
居室 ②
居室 ③
洋室
地図画像
物件詳細へ戻る
協会の概要
|
プライバシーポリシー
|
PC版
Copyright(C)柏崎不動産業協会.
All Rights Reserved.