0
北条売り物件 詳細
外観
店舗・居宅 全景1
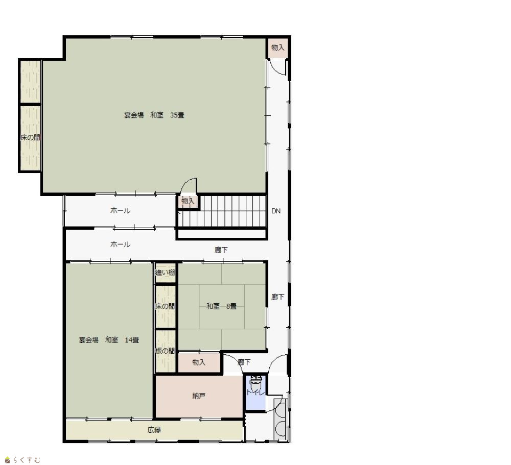
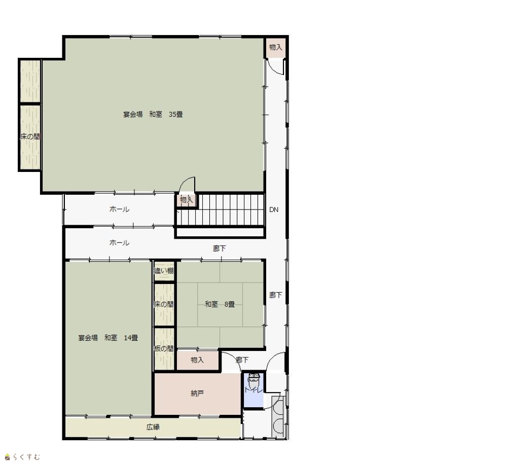
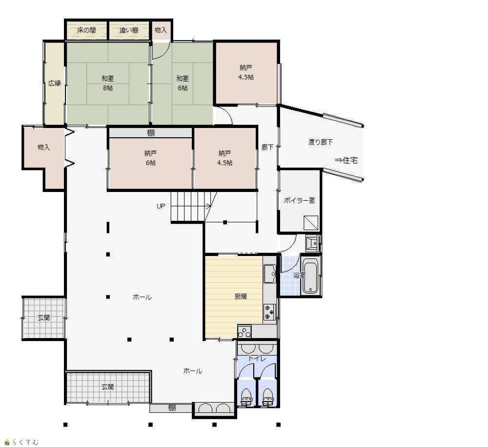
間取り
店舗・居宅 1F図面
その他の画像
店舗・居宅2F図面
住宅 1F図面
住宅 2F図面
店舗・居宅 玄関
店舗・居宅 全景2
居宅 全景1
店舗 ホール1
店舗ホール2
店舗 トイレ
店舗・居宅 浴室
温水器
和室
キッチン
階段
宴会場
2階和室 宴会
物件詳細へ戻る
協会の概要
|
プライバシーポリシー
|
PC版
Copyright(C)柏崎不動産業協会.
All Rights Reserved.