0
比角1丁目 中古住宅 詳細
外観
外観
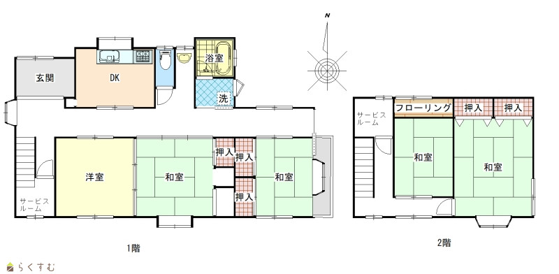
間取り
間取り
その他の画像
外観
玄関
洋室
和室
和室
キッチン
バスルーム
トイレ
洗面所
和室
和室
ワーキングスペース
庭
庭
庭
設備
物件詳細へ戻る
協会の概要
|
プライバシーポリシー
|
PC版
Copyright(C)柏崎不動産業協会.
All Rights Reserved.