0
グリーンハイツ 詳細
外観
外観
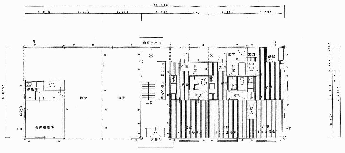
間取り
間取り
その他の画像
キッチン
洋室
洋室
クローゼット
風呂
トイレ
地図画像
物件詳細へ戻る
協会の概要
|
プライバシーポリシー
|
PC版
Copyright(C)柏崎不動産業協会.
All Rights Reserved.