0
ビストハウスⅠ 詳細
外観
外観
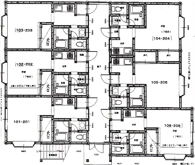
間取り
間取り
その他の画像
洋室
洋室
キッチン
バスルーム
トイレ
トイレ
物件詳細へ戻る
協会の概要
|
プライバシーポリシー
|
PC版
Copyright(C)柏崎不動産業協会.
All Rights Reserved.