0
半田2丁目 詳細
外観
外観
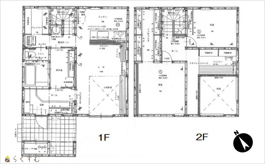
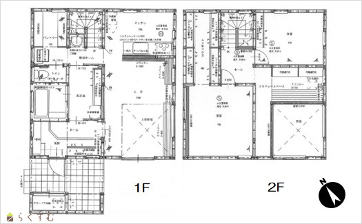
間取り
間取り図
その他の画像
玄関ポーチ
玄関収納
脱衣所 乾燥収納
浴室
1Fパントリー
洗面所
トイレ
リビングからキッチン
キッチンからリビング
システムキッチン
キッチン収納
階段
2F洋室
物件詳細へ戻る
協会の概要
|
プライバシーポリシー
|
PC版
Copyright(C)柏崎不動産業協会.
All Rights Reserved.