0
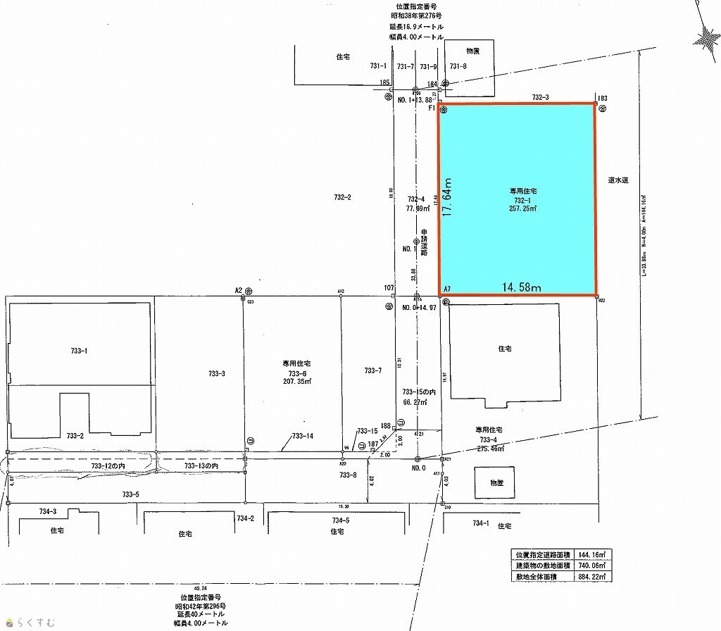
柳橋町77坪売土地 詳細
外観
外観
間取り
間取り
印刷用地図
物件詳細へ戻る
協会の概要
|
プライバシーポリシー
|
PC版
Copyright(C)柏崎不動産業協会.
All Rights Reserved.