物件画像を詳しく見る

5DK、米山海水浴場まで徒歩約8分、国道8号まで約300m
物件概要
-
物件コード
00088-200788
-
物件名
柏崎市米山町売住宅
-
交通
駅:信越線 米山駅から徒歩7分
-
所在地
新潟県柏崎市米山町2357-1
物件へのルート表示
-
物件種別
中古一戸建て
-
構造
木造
-
階建
地上2階建
-
建ぺい率/容積率
-
-
建物面積
118.2㎡
/35.75坪
-
土地面積
161.98㎡
/48.99坪
-
築年月
不詳
-
入居時期
相談
-
用途地域
無指定
-
地目
宅地
-
都市計画
都市計画区域外
-
形状
-
-
道路
公道
-
私道
-
-
その他の制限
法22条指定区域
物件詳細情報
-
所在階/階数
-
-
号室
-
-
販売価格
500,000円
-
方位
東
-
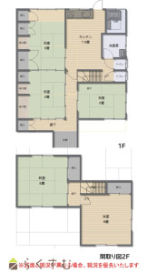
間取り
5DK (和室:6畳、6畳、6畳、8畳) (洋室:8)、DK7.8
-
専有面積
-
-
バルコニー面積
-
-
その他面積
-
-
駐車場
-
-
管理費
-
-
修繕積立金
-
-
現況
-
仲介手数料
330,000円
-
おすすめ条件
-
-
学校区
西小学校(10,619m)・第三中学校(9,647m)
-
設備
駐車2台可能
-
取引態様
一般
-
情報登録日
2026/04/10
-
次回更新予定日
2026/05/31
-
取引条件有効期限
2025/08/15
備考
□昭和59年建築
□下水は汲み取りです。
□軒天、2階天井工事が必要となります。
□改修工事は承れますのでご相談ください。
□建物は登記されておりません。
□建物保存登記をする場合は別途費用がかかります。
□物置(7.43㎡)(未登記)があります。
□井戸付(モーター交換必要)
□現況有姿での売買となります。(動産あり)
取扱い会社
株式会社 ホーメックス
-
TEL
0257-24-0034
-
所在地
新潟県柏崎市土合628-1
-
交通
-
営業時間
8:30~17:30/定休日:土・日・祝(対応可能です) 年末年始・お盆・GW
-
免許番号
新潟県知事(9)第3199号
-
所属団体名
新潟県宅地建物取引業協会 柏崎支部
-
取引態様
一般