
桜木町売り住宅 詳細
お気に入り
追加済み
物件画像を詳しく見る

平成11年に増改築しました。
物件概要
車庫付き住宅!
-
物件コード
00085-200028
-
物件名
桜木町売り住宅
-
交通
駅:越後線 東柏崎駅から徒歩11分、バス:リケン前から徒歩3分
-
所在地
新潟県柏崎市桜木町10-26
物件へのルート表示
-
物件種別
中古一戸建て
-
構造
木造
-
階建
地上2階建
-
建ぺい率/容積率
60%/200%
-
建物面積
219.53㎡
/66.4坪
-
土地面積
229㎡
/69.27坪
-
築年月
1971年5月(築55年)
-
入居時期
相談
-
用途地域
第1種住居地域
-
地目
宅地 (現状:宅地)
-
都市計画
都市計画区域外
-
形状
間口 10.8m × 奥行 23.0m
-
道路
市道柏崎4-25
-
私道
-
-
その他の制限
-
物件詳細情報
-
所在階/階数
-
-
号室
-
-
販売価格
3,900,000円
-
方位
東
-
間取り
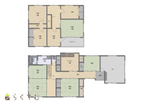
9DK (和室:6.0畳、8.0畳、8.0畳、6.0畳、10.0畳) (洋室:6.0、6.0、8.0)、DK8
-
専有面積
-
-
バルコニー面積
-
-
その他面積
-
-
駐車場
-
-
管理費
-
-
修繕積立金
-
-
現況
居住中
-
仲介手数料
330,000円
-
おすすめ条件
-
-
学校区
柏崎小学校(1,237m)・第一中学校(1,043m)
-
設備
日当り良好、閑静な住宅街、駐車2台可能、3口コンロ、ガスコンロ設置済み、追いだき機能付き、温水洗浄便座、エアコンあり、都市ガス、上水道、下水道、ウォークインクローゼット、シューズインクローゼット
-
取引態様
専任
-
情報登録日
2026/02/20
-
次回更新予定日
2026/05/31
-
取引条件有効期限
2026/05/19
備考
取扱い会社
柏越建設 株式会社
Copyright(C)柏崎不動産業協会.
All Rights Reserved.