0
三条市中野原売り住宅 詳細
お気に入り
追加済み
外観
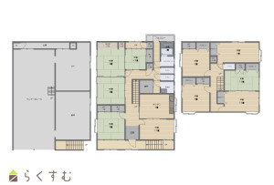
間取り
外観
外観
駐車場
玄関
駐車場
洋室
洋室
リビング
和室
階段
キッチン
キッチン
トイレ
バスルーム
洗面所
和室
洋室
和室
外観
印刷用地図
物件画像を詳しく見る
キャンプ場、温泉施設近く。有名アウトドアショップ近く
物件概要
価格
13,400,000円
広さ
土地:936.79㎡ /283.37坪
建物:348.62㎡ /105.45坪
住所
新潟県三条市中野原301番123
物件へのルート表示
高床住宅!敷地内に5台駐車可能!
物件コード
00085-200018
物件名
三条市中野原売り住宅
交通
駅:信越線 東三条駅から徒歩139分、バス:中野原(上)から徒歩2分
所在地
新潟県三条市中野原301番123
物件へのルート表示
物件種別
中古一戸建て
構造
木造鉄筋コン
階建
地上3階建
建ぺい率/容積率
70%/200%
建物面積
348.62㎡ /105.45坪
土地面積
936.79㎡ /283.37坪
築年月
1993年3月(築32年)
入居時期
相談
用途地域
無指定
地目
宅地 (現状:宅地)
都市計画
都市計画区域外
形状
間口 17.6m
道路
市道 やまなみ線
私道
-
その他の制限
-
メール問合せ
電話問合せ:0257-24-1548
物件詳細情報
所在階/階数
-
号室
-
販売価格
13,400,000円
方位
南西
間取り
10DK (和室:8.0畳、8.0畳、4.5畳、7.5畳、7.5畳) (洋室:8.0、7.0、8.5、8.0、9.0)、DK8.75
専有面積
-
バルコニー面積
-
その他面積
-
駐車場
-
管理費
-
修繕積立金
-
現況
空家
仲介手数料
508,200円
おすすめ条件
-
学校区
笹岡小学校(349m)・下田中学校(1,749m)
設備
日当り良好、駐車3台以上可能、南向き、IHクッキングヒーター、3口コンロ、追いだき機能付き、温水洗浄便座、トイレ2か所以上、エアコンあり、上水道、浄化槽、シューズBOX、内装リフォーム済み
取引態様
専任
情報登録日
2025/12/09
次回更新予定日
2025/12/29
取引条件有効期限
2025/11/26
メール問合せ
電話問合せ:0257-24-1548
備考
取扱い会社
柏越建設 株式会社
TEL
0257-24-1548
所在地
新潟県柏崎市半田2丁目7番5号エクシードA102
交通
柏崎駅
営業時間
9:00~17:00/定休日:日・祝
免許番号
新潟県知事(9)第3408号
所属団体名
柏越建設株式会社
取引態様
専任
メール問合せ
電話問合せ:0257-24-1548
メールでお問い合わせ
電話でお問い合わせ
0257-24-1548
協会の概要
|
プライバシーポリシー
|
PC版
Copyright(C)柏崎不動産業協会.
All Rights Reserved.