0
アンジュ枇杷島 詳細
お気に入り
追加済み
外観
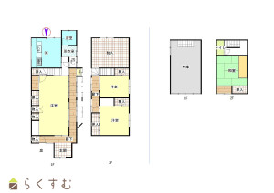
間取り図 本棟+別棟 現況と相違の場合は現況優先とします
1
2
3
4
5
6
7
8
別棟
地図画像
物件画像を詳しく見る
物件概要
価格
6,200,000円
利回り
12%
※表面利回り(満室想定時)
広さ
土地:269.01㎡ /81.37坪
建物:192.35㎡ /58.18坪
住所
新潟県柏崎市関町6-5
物件へのルート表示
物件コード
00083-200044
物件名
アンジュ枇杷島
交通
駅:信越線 柏崎駅から徒歩12分、バス:宮場町から徒歩3分
所在地
新潟県柏崎市関町6-5
物件へのルート表示
物件種別
投資物件・その他
物件区分
1棟売りマンション・アパート
構造
木造
階建
地上2階建
建ぺい率/容積率
60%/200%
建物面積
192.35㎡ /58.18坪
土地面積
269.01㎡ /81.37坪
築年月
1976年10月(築49年)
入居時期
相談
用途地域
第1種低層住居専用地域
地目
宅地
都市計画
非線引き都市計画区域
形状
-
道路
-
私道
-
その他の制限
-
メール問合せ
電話問合せ:0257-24-2545
物件詳細情報
所在階/階数
-
号室
-
販売価格
6,200,000円
表面利回り
(満室想定時)
12%
満室想定年収
- (想定月収: - )
現行利回り
-
現行年間年収
-
住戸数
1
方位
-
間取り
3SLDK
専有面積
192.35㎡ /58.18坪 ~ 192.35㎡ /58.18坪
バルコニー面積
-
その他面積
-
駐車場
2~3台
管理費
-
修繕積立金
-
現況
賃貸中
仲介手数料
270,600円
おすすめ条件
-
学校区
枇杷島小学校(275m)・鏡が沖中学校(1,023m)
設備
公営水道、都市ガス、下水道
取引態様
一般
情報登録日
2025/12/17
次回更新予定日
2026/05/06
取引条件有効期限
2026/06/30
メール問合せ
電話問合せ:0257-24-2545
備考
取扱い会社
株式会社 アイエステート
TEL
0257-24-2545
所在地
新潟県柏崎市東港町4番1号
交通
柏崎駅
営業時間
9:00~17:00/定休日:日曜日・祝日
免許番号
新潟県知事(3)第5068号
所属団体名
新潟県宅地建物取引協会 柏崎支部
取引態様
一般
メール問合せ
電話問合せ:0257-24-2545
メールでお問い合わせ
電話でお問い合わせ
0257-24-2545
協会の概要
|
プライバシーポリシー
|
PC版
Copyright(C)柏崎不動産業協会.
All Rights Reserved.