売買上方 詳細
お気に入り


外観

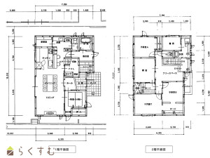
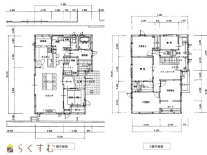
間取り図

広々とした庭で家庭菜園もできます

玄関脇 シューズクローク/コート掛け

LDK あたたかい日差し入ります

システムキッチン

IHクッキングヒーター/グリル

シングルレバー(シャワーつき)

食器洗い乾燥機

奥はパントリー

パントリー たっぷり収納できます

洗面所

脱衣所

浴室(暖房換気乾燥機つき)

階段

2階ホール/屋根裏

2階ホール横 バルコニー

2階東側洋室

2階南側洋室

2階中央洋室

2階北側洋室

公図

物件画像を詳しく見る
2017年築、敷地80坪の5LDK中古住宅。子供たちが遊んだり、家庭菜園ができるゆったりとした庭があります。
物件概要
  • 物件コード 00050-200417
  • 物件名 上方
  • 交通 駅:信越線 柏崎駅から徒歩45分、バス:上方(R353)から徒歩6分
  • 所在地 新潟県柏崎市大字上方342番、348番2、他 物件へのルート表示
  • 物件種別 中古一戸建て
  • 構造 木造
  • 階建 地上2階建
  • 建ぺい率/容積率 70%/200%
  • 建物面積 134.56㎡ /40.7坪
  • 土地面積 265.5㎡ /80.31坪
  • 築年月 2017年3月(築9年)
  • 入居時期 相談
  • 用途地域 無指定
  • 地目 宅地  (現状:宅地)
  • 都市計画 非線引き都市計画区域
  • 形状 -
  • 道路 東側:市道(除雪あり)
  • 私道 -
  • その他の制限 -
物件詳細情報
  • 所在階/階数 -
  • 号室 -
  • 販売価格 22,000,000円
  • 方位 西
  • 間取り 6LDK (和室:3.8畳) (洋室:5.1、5.9、6.1、4.6)、LDK19.5、書斎2.7帖
  • 専有面積 -
  • バルコニー面積 -
  • その他面積 -
  • 駐車場 -
  • 管理費 -
  • 修繕積立金 -
  • 現況 空家
  • 仲介手数料 792,000円
  • おすすめ条件 -
  • 学校区 新道小学校(1,019m)・南中学校(612m)
  • 設備 日当り良好、閑静な住宅街、LDK15帖以上、築10年以内、駐車2台可能、駐車3台以上可能、TVインターホン、複層ガラス、デインプルキー、システムキッチン、IHクッキングヒーター、食器洗浄乾燥機、3口コンロ、追いだき機能付き、温水洗浄便座、トイレ2か所以上、シャワー付き洗面台、エアコンあり、24時間換気システム、オール電化、ウッドデッキ・テラス、上水道、下水道、ウォークインクローゼット、全居室収納あり、シューズインクローゼット
  • 取引態様 専任
  • 情報登録日 2025/07/07
  • 次回更新予定日 2026/05/31
  • 取引条件有効期限 2025/12/26
備考
取扱い会社
八幡開発株式会社
  • TEL 0257-22-3357
  • 所在地 新潟県柏崎市横山440番地1
  • 交通 柏崎駅
  • 営業時間 9:00~17:30/定休日:日曜・祭日
  • 免許番号 新潟県知事(14)第1377号
  • 所属団体名 新潟県宅地建物取引業協会 柏崎支部
  • 取引態様 専任
Copyright(C)柏崎不動産業協会.
All Rights Reserved.