売買長岡市豊 戸建 詳細

外観
美しい庭木と門構えが和の風情を感じさせる落ち着いた住まい。
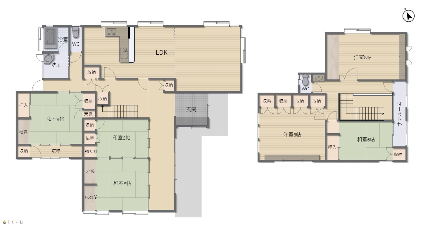
間取り
全室ゆとりある広さがあり、和室が4部屋ある落ち着いた住まい。
その他の画像
広々としたLDKは、家族団らんなどゆとりをもって過ごせる空間
カーテンで空間を区切れ、用途に応じた柔軟な使い方が可能です。
収納スペースが豊富なキッチン!
コーナー洗面台で空間を広くお使いいただけます。
窓があるので換気もでき、湿気対策にも◎
各階トイレがあるので安心ですね。
1階和室8帖 隣接する6帖和室と続き間で、より広々♪
1階和室6帖 仏間がある落ち着いた和室です。
1階和室8帖 広縁がついた明るく開放的な和室。
2階洋室 ベッドなどの大きな家具を置いても広々としております
大きな窓が印象的な2階洋室は、開放感と採光に優れた快適空間
2階和室6帖 押入・収納スペースが付き。
サンルーム付きで、天候や時間を気にせずに洗濯物が干せます。
開放感ある2階ホールから、吹抜けを通して玄関へ光が届きます。
格子戸や木の風合いが美しい、落ち着きある和の玄関。
石畳と植栽が織りなす、四季を感じる和風庭園。
駐車1台可能な車庫付き
東側6.1m市道、北側6m市道 どちらも消雪パイプ完備
物件詳細へ戻る
Copyright (C) 株式会社 コモンライフ・コーポレーション. All Rights Reserved.
不動産検索サイト「らくすむ」及び関連サイトに記載の不動産情報は、会員規約に則り、情報提供会社様の責任のもとに発信されております。
不動産の賃借、購入に関しては賃借者、購入者ご自身が情報を確認され、会社企業様から説明を受けられたうえで判断をお願いいたします。
不動産検索サイト「らくすむ」及び関連サイトに記載の不動産情報、写真、デザイン、コンテンツなどの無断転載・転用・複製など禁止します。