
新潟市西区西小針台3丁目 中古戸建 詳細
お気に入り
追加済み
物件画像を詳しく見る

落ち着きのある閑静な住宅街の和風邸宅!まだまだ綺麗ですが、お好みのリフォームやリノベーションもご相談可能です!
物件概要
-
物件コード
00378-200075
-
物件名
新潟市西区西小針台3丁目 中古戸建
-
交通
駅:越後線 寺尾駅から徒歩16分、バス:松海が丘から徒歩6分
-
所在地
新潟県新潟市西区西小針台3丁目2-3
物件へのルート表示
-
物件種別
中古一戸建て
-
構造
木造
-
階建
地上2階建
-
建ぺい率/容積率
50%/100%
-
建物面積
114.26㎡
/34.56坪
-
土地面積
177.11㎡
/53.57坪
-
築年月
1972年9月(築53年)
-
入居時期
随時入居(引き渡し)可
-
用途地域
第1種低層住居専用地域
-
地目
宅地
-
都市計画
市街化区域
-
形状
間口 10.9m × 奥行 16.1m
-
道路
東側 約4.0m 私道 (位置指定道路)
-
私道
-
-
その他の制限
-
物件詳細情報
-
所在階/階数
-
-
号室
-
-
販売価格
11,000,000円
-
方位
-
-
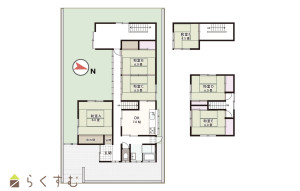
間取り
6DK (和室:8畳、6畳、6畳、6畳、6畳、4.5畳)、DK7
-
専有面積
-
-
バルコニー面積
-
-
その他面積
-
-
駐車場
-
-
管理費
-
-
修繕積立金
-
-
現況
空家
-
仲介手数料
405,600円
-
利用制限
-
-
学校区
真砂小学校(617m)・五十嵐中学校(1,251m)
-
設備
閑静な住宅街、スーパー近く、都市ガス、上水道、下水道、即引き渡し可能
-
取引態様
専任
-
情報登録日
2026/02/17
-
次回更新予定日
2026/04/18
-
取引条件有効期限
2026/02/12
備考
・道路位置指定:S43年9月26日 第131号
・現況有姿でのお引渡しとなります。
・建物には一部未登記部分があります。
・売主の契約不適合責任免責
取扱い会社
長岡不動産販売株式会社
-
TEL
0258-86-4690
-
所在地
新潟県長岡市神田町3-4-5
-
交通
長岡駅
-
営業時間
10:00~18:00/定休日:水曜日 ※ご都合に合わせて対応可能です
-
免許番号
新潟県知事(1)第5764号
-
所属団体名
公社 全日本不動産協会 新潟県本部
-
取引態様
専任
Copyright (C) 株式会社 コモンライフ・コーポレーション. All Rights Reserved.
不動産検索サイト「らくすむ」及び関連サイトに記載の不動産情報は、会員規約に則り、情報提供会社様の責任のもとに発信されております。
不動産の賃借、購入に関しては賃借者、購入者ご自身が情報を確認され、会社企業様から説明を受けられたうえで判断をお願いいたします。
不動産検索サイト「らくすむ」及び関連サイトに記載の不動産情報、写真、デザイン、コンテンツなどの無断転載・転用・複製など禁止します。