
柏崎市 松美1丁目 中古戸建 ※商談中 詳細
お気に入り
追加済み
物件画像を詳しく見る

スーパー近くです。
物件概要
-
物件コード
00350-200050
-
物件名
柏崎市 松美1丁目 中古戸建 ※商談中
-
交通
駅:越後線 東柏崎駅から徒歩16分、バス:中央通長浜から徒歩4分
-
所在地
新潟県柏崎市松美1丁目6番26号
物件へのルート表示
-
物件種別
中古一戸建て
-
構造
木造
-
階建
地上2階建
-
建ぺい率/容積率
60%/200%
-
建物面積
98.83㎡
/29.89坪
-
土地面積
85.52㎡
/25.86坪
-
築年月
1988年8月(築37年)
-
入居時期
相談
-
用途地域
第1種住居地域
-
地目
宅地 (現状:宅地)
-
都市計画
非線引き都市計画区域
-
形状
間口 8.26m × 奥行 10.35m
-
道路
東側:公道 南側:位置指定道路
-
私道
-
-
その他の制限
道路斜線制限・隣地斜線制限・日影規制
物件詳細情報
-
所在階/階数
-
-
号室
-
-
販売価格
3,750,000円
-
方位
指定なし
-
間取り
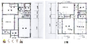
4DK (和室:6畳) (洋室:6、6、6.5)、DK6、現況有姿での売買となります。
-
専有面積
-
-
バルコニー面積
-
-
その他面積
12.2㎡
/3.69坪
車庫
-
駐車場
-
-
管理費
-
-
修繕積立金
-
-
現況
空家
-
仲介手数料
330,000円
-
利用制限
-
-
学校区
比角小学校(900m)・第二中学校(900m)
-
設備
角地、スーパー近く、追いだき機能付き、温水洗浄便座、シャワー付き洗面台、都市ガス、上水道、下水道、シューズBOX、内装リフォーム済み、外装リフォーム済み、田舎暮らし
-
取引態様
一般
-
情報登録日
2025/09/06
-
次回更新予定日
2025/10/25
-
取引条件有効期限
2025/12/31
備考
ハザードマップ該当区(洪水)
取扱い会社
株式会社裕建
Copyright (C) 株式会社 コモンライフ・コーポレーション. All Rights Reserved.
不動産検索サイト「らくすむ」及び関連サイトに記載の不動産情報は、会員規約に則り、情報提供会社様の責任のもとに発信されております。
不動産の賃借、購入に関しては賃借者、購入者ご自身が情報を確認され、会社企業様から説明を受けられたうえで判断をお願いいたします。
不動産検索サイト「らくすむ」及び関連サイトに記載の不動産情報、写真、デザイン、コンテンツなどの無断転載・転用・複製など禁止します。