
【賃貸】サーパス東新町隣P NO.7 詳細
お気に入り
追加済み
物件画像を詳しく見る

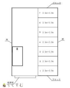
前面道路7.7m。生活環境良好な住宅地の駐車場。
物件概要
融雪装置あり、冬でも安心してご利用いただけます。
-
物件コード
00320-100015
-
物件名
【賃貸】サーパス東新町隣P NO.7
-
交通
駅:信越線 北長岡駅から徒歩16分、バス:昭和通りから徒歩4分
-
所在地
長岡市東新町1丁目510-107
物件へのルート表示
-
物件種別
駐車場
-
総戸数
-
-
構造
-
-
階建
-
-
所在階/階数
-
-
号室
-
-
専有面積
-
-
方位
-
-
間取り
-
-
賃料
0.75万円/月
-
管理費
-
-
礼金
-
-
敷金
-
-
共益費
-
-
ほか初期費用
-
-
その他諸費用
振込手数料:880円
※最大の金額です。
-
更新料
-
-
火災(家財)保険
-
-
駐車場
-
-
町内費
-
-
バイク料金
-
-
鍵交換費
-
-
清掃料
-
-
振込手数料
880円
※最大の金額です。
-
更新事務手数料
-
-
保証区分
緊急連絡先のみ
-
保証会社
区分:指定なし
-
-
連帯保証人
[区分]
不要
-
-
仲介手数料
7,500円
-
手数料負担割合
貸主:-%
借主:100%
-
手数料配分割合
元付:100%
客付:-%
-
築年月
-
-
利用制限
-
-
学校区
新町小学校(482m)・北中学校(1,594m)
-
設備
舗装、即利用可能
-
入居時期
即入居可
-
取引態様
仲介
-
情報登録日
2026/02/27
-
次回更新予定日
2026/04/19
備考
取扱い会社
有限会社 ブライトサクセス
-
TEL
0258-35-2220
-
所在地
新潟県長岡市新町1-1-2
-
交通
長岡駅
-
営業時間
午前10時00分~午後7時 /定休日:オンラインサービス:午前9時30分~午後9時
-
免許番号
新潟県知事(1)第5629号
-
所属団体名
公社 新潟県宅地建物取引協会 新潟支部
-
取引態様
仲介
Copyright (C) 株式会社 コモンライフ・コーポレーション. All Rights Reserved.
不動産検索サイト「らくすむ」及び関連サイトに記載の不動産情報は、会員規約に則り、情報提供会社様の責任のもとに発信されております。
不動産の賃借、購入に関しては賃借者、購入者ご自身が情報を確認され、会社企業様から説明を受けられたうえで判断をお願いいたします。
不動産検索サイト「らくすむ」及び関連サイトに記載の不動産情報、写真、デザイン、コンテンツなどの無断転載・転用・複製など禁止します。