
富岡 売店舗 詳細
お気に入り
追加済み
物件画像を詳しく見る

上越IC近くで交通アクセス良好!
物件概要
-
物件コード
00308-200245
-
物件名
富岡 売店舗
-
交通
駅:妙高はねうまライン 春日山駅から徒歩36分、バス:富岡十字路から徒歩5分
-
所在地
新潟県上越市富岡1874-3
物件へのルート表示
-
物件種別
中古一戸建て
-
構造
木造
-
階建
地上2階建
-
建ぺい率/容積率
50%/80%
-
建物面積
134.61㎡
/40.71坪
-
土地面積
182.57㎡
/55.22坪
-
築年月
1992年4月(築33年)
-
入居時期
相談
-
用途地域
第1種低層住居専用地域
-
地目
宅地
-
都市計画
市街化区域
-
形状
-
-
道路
-
-
私道
-
-
その他の制限
-
物件詳細情報
-
所在階/階数
-
-
号室
-
-
販売価格
15,000,000円
-
方位
-
-
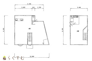
間取り
2LDK、1階が店舗、2階が事務所となっています。
-
専有面積
-
-
バルコニー面積
-
-
その他面積
-
-
駐車場
-
-
管理費
-
-
修繕積立金
-
-
現況
居住中
-
仲介手数料
561,000円
-
利用制限
-
-
学校区
富岡小学校(657m)・城東中学校(3,838m)
-
設備
角地、日当り良好、駐車3台以上可能
-
取引態様
一般
-
情報登録日
2023/12/10
-
次回更新予定日
2025/10/27
-
取引条件有効期限
2024/03/31
備考
取扱い会社
上越宅地販売株式会社
-
TEL
025-522-3838
-
所在地
新潟県上越市南高田町1-2アサノビル1階
-
交通
妙高はねうまライン 南高田駅 徒歩1分
-
営業時間
9:00~18:30/定休日:毎週水曜日・GW・夏季・臨時休業(9/21日曜日)・年末年始
-
免許番号
新潟県知事(9)第3372号
-
所属団体名
公社 新潟県宅地建物取引協会 上越支部
-
取引態様
一般
Copyright (C) 株式会社 コモンライフ・コーポレーション. All Rights Reserved.
不動産検索サイト「らくすむ」及び関連サイトに記載の不動産情報は、会員規約に則り、情報提供会社様の責任のもとに発信されております。
不動産の賃借、購入に関しては賃借者、購入者ご自身が情報を確認され、会社企業様から説明を受けられたうえで判断をお願いいたします。
不動産検索サイト「らくすむ」及び関連サイトに記載の不動産情報、写真、デザイン、コンテンツなどの無断転載・転用・複製など禁止します。