
朝日町1丁目 新井駅近 395坪 詳細
お気に入り
追加済み
物件画像を詳しく見る

ゲストハウス・別荘・住居兼店舗をお探しの方に!ロッテ新井リゾートまで車で13分!
物件概要
駅近!商業地域!街中の豪邸✨
-
物件コード
00265-200062
-
物件名
朝日町1丁目 新井駅近 395坪
-
交通
駅:妙高はねうまライン 新井駅から徒歩4分、バス:朝日町ショッピングプラザ前から徒歩3分
-
所在地
新潟県妙高市朝日町1丁目5番1号
物件へのルート表示
-
物件種別
中古一戸建て
-
構造
軽量鉄骨
-
階建
地上2階建
-
建ぺい率/容積率
80%/400%
-
建物面積
320.97㎡
/97.09坪
-
土地面積
1,307.79㎡
/395.6坪
-
築年月
1997年5月(築28年)
-
入居時期
随時入居(引き渡し)可
-
用途地域
商業地域
-
地目
宅地 (現状:宅地)
-
都市計画
非線引き都市計画区域
-
形状
間口 25m × 奥行 40m
-
道路
前面道路:市道/消雪パイプ有
-
私道
-
-
その他の制限
建築基準法第22条
物件詳細情報
-
所在階/階数
-
-
号室
-
-
販売価格
32,000,000円
-
方位
南
-
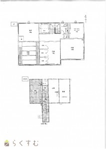
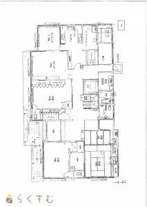
間取り
6LDK、LDK17帖
-
専有面積
-
-
バルコニー面積
-
-
その他面積
-
-
駐車場
-
-
管理費
-
-
修繕積立金
-
-
現況
空家
-
仲介手数料
1,122,000円
-
利用制限
-
-
学校区
新井中央小学校(631m)・新井中学校(1,306m)
-
設備
日当り良好、閑静な住宅街、新築時図面あり、LDK15帖以上、駐車3台以上可能、南向き、TVインターホン、システムキッチン、IHクッキングヒーター、追いだき機能付き、浴室乾燥機、バス1坪以上、温水洗浄便座、トイレ2か所以上、シャワー付き洗面台、エアコンあり、床暖房、24時間換気システム、ウッドデッキ・テラス、都市ガス、上水道、下水道、ウォークインクローゼット、全居室収納あり、2世帯向き、即引き渡し可能、別荘、事業向け
-
取引態様
一般
-
情報登録日
2026/04/03
-
次回更新予定日
2026/04/18
-
取引条件有効期限
2024/03/31
備考
妙高はねうまライン新井駅から徒歩4分の商業地域。以前は街の病院兼住居として利用していました。敷地500坪と広く、設備も充実したお宅です。住居用としてはもちろんですが、ゲストハウスや店舗兼住宅などの事業用としてもおすすめの物件です。ご興味ある方は一度ご内覧下さい。
取扱い会社
楽栄不動産株式会社
-
TEL
0255-72-0003
-
所在地
新潟県妙高市雪森645-1
-
交通
妙高はねうまライン北井駅
-
営業時間
8時~17時/定休日:土・日・祝日、その他夏季・年末年始
-
免許番号
新潟県知事(12)第2463号
-
所属団体名
公社 新潟県宅地建物取引協会 上越支部
-
取引態様
一般
Copyright (C) 株式会社 コモンライフ・コーポレーション. All Rights Reserved.
不動産検索サイト「らくすむ」及び関連サイトに記載の不動産情報は、会員規約に則り、情報提供会社様の責任のもとに発信されております。
不動産の賃借、購入に関しては賃借者、購入者ご自身が情報を確認され、会社企業様から説明を受けられたうえで判断をお願いいたします。
不動産検索サイト「らくすむ」及び関連サイトに記載の不動産情報、写真、デザイン、コンテンツなどの無断転載・転用・複製など禁止します。