
のどかな住宅街にある三和区神明町の家 詳細
お気に入り
追加済み
物件画像を詳しく見る

周囲は閑静な住宅街◎のんびりと暮らせる住環境
物件概要
400m圏内にコンビニ、ホームセンターがあり便利な立地
-
物件コード
00263-200142
-
物件名
のどかな住宅街にある三和区神明町の家
-
交通
駅:妙高はねうまライン 高田駅から徒歩99分
-
所在地
新潟県上越市三和区神明町1182-26
物件へのルート表示
-
物件種別
中古一戸建て
-
構造
木造
-
階建
地上2階建
-
建ぺい率/容積率
70%/200%
-
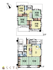
建物面積
189.24㎡
/57.24坪
-
土地面積
380.69㎡
/115.15坪
-
築年月
1994年3月(築32年)
-
入居時期
相談
-
用途地域
用途の指定のない地域
-
地目
宅地
-
都市計画
都市計画区域外
-
形状
-
-
道路
北東:公道 7m
-
私道
-
-
その他の制限
-
物件詳細情報
-
所在階/階数
-
-
号室
-
-
販売価格
15,000,000円
-
方位
北
-
間取り
6LDK
-
専有面積
-
-
バルコニー面積
-
-
その他面積
-
-
駐車場
-
-
管理費
-
-
修繕積立金
-
-
現況
空家
-
仲介手数料
561,000円
-
利用制限
-
-
学校区
三和小学校(1,508m)・三和中学校(3,469m)
-
設備
日当り良好、閑静な住宅街、駐車2台可能、システムキッチン、3口コンロ、ガスコンロ設置済み、追いだき機能付き、浴室乾燥機、バス1坪以上、温水洗浄便座、トイレ2か所以上、シャワー付き洗面台、エアコンあり、都市ガス、上水道、下水道、シューズBOX、田舎暮らし
-
取引態様
専属専任
-
情報登録日
2025/11/10
-
次回更新予定日
2026/06/05
-
取引条件有効期限
2025/12/02
備考
取扱い会社
ピタットハウス上越店 日建不動産
Copyright (C) 株式会社 コモンライフ・コーポレーション. All Rights Reserved.
不動産検索サイト「らくすむ」及び関連サイトに記載の不動産情報は、会員規約に則り、情報提供会社様の責任のもとに発信されております。
不動産の賃借、購入に関しては賃借者、購入者ご自身が情報を確認され、会社企業様から説明を受けられたうえで判断をお願いいたします。
不動産検索サイト「らくすむ」及び関連サイトに記載の不動産情報、写真、デザイン、コンテンツなどの無断転載・転用・複製など禁止します。