
夷浜売家・駐車場500万円 詳細
お気に入り
追加済み
物件画像を詳しく見る

保育園~中学校まで徒歩圏内。近隣に運動広場。海浜道路まで270m。
物件概要
LDKフルリフォーム済。
-
物件コード
00260-200046
-
物件名
夷浜売家・駐車場500万円
-
交通
駅:ほくほく線 犀潟駅から徒歩23分、バス:夷浜中から徒歩2分
-
所在地
新潟県上越市夷浜119番19
物件へのルート表示
-
物件種別
中古一戸建て
-
構造
木造
-
階建
地上1階地下2階建
-
建ぺい率/容積率
60%/200%
-
建物面積
171.94㎡
/52.01坪
-
土地面積
500.02㎡
/151.25坪
-
築年月
1979年9月(築46年)
-
入居時期
相談
-
用途地域
第1種中高層住居専用地域
-
地目
宅地 (現状:宅地)
-
都市計画
市街化区域
-
形状
間口 16m × 奥行 20m
-
道路
宅地部分私道幅員3.8m、市道幅員4m
-
私道
-
-
その他の制限
法22条指定区域
物件詳細情報
-
所在階/階数
-
-
号室
-
-
販売価格
5,000,000円
-
方位
北
-
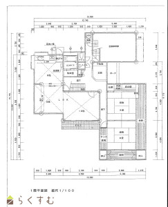
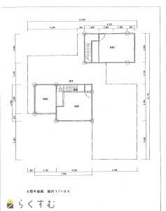
間取り
5LDK (和室:8畳、8畳) (洋室:10、9、6)、LDK26
-
専有面積
-
-
バルコニー面積
-
-
その他面積
-
-
駐車場
-
-
管理費
-
-
修繕積立金
-
-
現況
空家
-
仲介手数料
330,000円
-
利用制限
-
-
学校区
八千浦小学校(935m)・八千浦中学校(1,328m)
-
設備
日当り良好、閑静な住宅街、スーパー近く、LDK15帖以上、駐車3台以上可能、南向き、システムキッチン、3口コンロ、追いだき機能付き、バス1坪以上、温水洗浄便座、シャワー付き洗面台、エアコンあり、省エネ給湯機、ウッドデッキ・テラス、都市ガス、上水道、浄化槽、2世帯向き、即引き渡し可能
-
取引態様
専任
-
情報登録日
2025/03/13
-
次回更新予定日
2025/10/25
-
取引条件有効期限
2024/11/09
備考
建物南側は道路と共有耕作の畑が広がり、県道まで眺望が広がり開放的です。
取扱い会社
信濃土地株式会社 上越支店
Copyright (C) 株式会社 コモンライフ・コーポレーション. All Rights Reserved.
不動産検索サイト「らくすむ」及び関連サイトに記載の不動産情報は、会員規約に則り、情報提供会社様の責任のもとに発信されております。
不動産の賃借、購入に関しては賃借者、購入者ご自身が情報を確認され、会社企業様から説明を受けられたうえで判断をお願いいたします。
不動産検索サイト「らくすむ」及び関連サイトに記載の不動産情報、写真、デザイン、コンテンツなどの無断転載・転用・複製など禁止します。