
二本木売家 詳細
お気に入り
追加済み
物件画像を詳しく見る
物件概要
-
物件コード
00259-200072
-
物件名
二本木売家
-
交通
駅:妙高はねうまライン 二本木駅から徒歩31分、バス:中郷区総合事務所前から徒歩14分
-
所在地
新潟県上越市中郷区二本木1889-6
物件へのルート表示
-
物件種別
中古一戸建て
-
構造
木造鉄筋コン
-
階建
地上3階建
-
建ぺい率/容積率
70%/200%
-
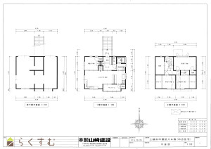
建物面積
156.51㎡
/47.34坪
-
土地面積
1,108.63㎡
/335.36坪
-
築年月
1998年5月(築27年)
-
入居時期
随時入居(引き渡し)可
-
用途地域
用途の指定のない地域
-
地目
宅地 (現状:宅地)
-
都市計画
非線引き都市計画区域
-
形状
間口 31.8m
-
道路
北西側7m
-
私道
-
-
その他の制限
-
物件詳細情報
-
所在階/階数
-
-
号室
-
-
販売価格
4,500,000円
-
方位
北西
-
間取り
4LDK (洋室:7.5、4.5、4.5、4.5)、LDK15.5
-
専有面積
-
-
バルコニー面積
-
-
その他面積
-
-
駐車場
-
-
管理費
-
-
修繕積立金
-
-
現況
空家
-
仲介手数料
660,000円
-
利用制限
-
-
学校区
中郷小学校(2,083m)・中郷中学校(2,283m)
-
設備
日当り良好、新築時図面あり、LDK15帖以上、全室フローリング、LPG、上水道、下水道、全居室収納あり
-
取引態様
専任
-
情報登録日
2025/08/22
-
次回更新予定日
2025/10/25
-
取引条件有効期限
2025/11/22
備考
取扱い会社
株式会社山崎建設
-
TEL
0255-72-3129
-
所在地
新潟県妙高市東陽町2-20
-
交通
えちごトキめき鉄道 新井駅から徒歩25分
-
営業時間
8:00〜17:00/定休日:土日祝日
-
免許番号
新潟県知事(8)第3467号
-
所属団体名
公益社団法人新潟県宅地建物取引協会 上越支部
-
取引態様
専任
Copyright (C) 株式会社 コモンライフ・コーポレーション. All Rights Reserved.
不動産検索サイト「らくすむ」及び関連サイトに記載の不動産情報は、会員規約に則り、情報提供会社様の責任のもとに発信されております。
不動産の賃借、購入に関しては賃借者、購入者ご自身が情報を確認され、会社企業様から説明を受けられたうえで判断をお願いいたします。
不動産検索サイト「らくすむ」及び関連サイトに記載の不動産情報、写真、デザイン、コンテンツなどの無断転載・転用・複製など禁止します。