物件画像を詳しく見る

海岸まで徒歩4分! 道の駅「うみてらす名立」まで徒歩8分! 名立谷浜ICまで車で6分!
物件概要
セブンイレブン徒歩3分です。ちょっとした買い物にも便利です!
-
物件コード
00250-200075
-
物件名
名立区 中古戸建
-
交通
駅:日本海ひすいライン 名立駅から徒歩15分、バス:診療所入口から徒歩5分
-
所在地
新潟県上越市名立区名立大町1685
物件へのルート表示
-
物件種別
中古一戸建て
-
構造
木造
-
階建
地上2階建
-
建ぺい率/容積率
-
-
建物面積
103.29㎡
/31.24坪
-
土地面積
24㎡
/7.26坪
-
築年月
1964年8月(築61年)
-
入居時期
随時入居(引き渡し)可
-
用途地域
無指定
-
地目
雑種他 (現状:宅地)
-
都市計画
都市計画区域外
-
形状
間口 4.6m × 奥行 30m
-
道路
上越市道 幅員5.8m 除雪道路
-
私道
-
-
その他の制限
-
物件詳細情報
-
所在階/階数
-
-
号室
-
-
販売価格
900,000円
-
方位
南
-
間取り
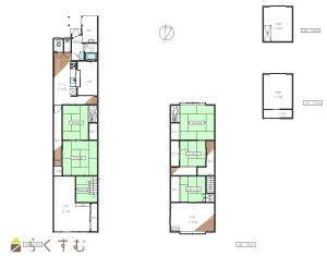
6DK (和室:6畳、8畳、8畳、6畳、4.5畳) (洋室:8.2)、居間8帖
-
専有面積
-
-
バルコニー面積
-
-
その他面積
28㎡
/8.47坪
2階建納屋(未登記)
-
駐車場
-
-
管理費
-
-
修繕積立金
-
-
現況
空家
-
仲介手数料
330,000円
-
借地料(年)
22,750円
年間料金(年末一括払い)
-
利用制限
-
-
学校区
宝田小学校(2,691m)・名立中学校(943m)
-
設備
追いだき機能付き、温水洗浄便座、エアコンあり、LPG、上水道、下水道
-
取引態様
専任
-
情報登録日
2026/04/20
-
次回更新予定日
2026/06/05
-
取引条件有効期限
2026/07/20
備考
・1階玄関部分土間に軽の駐車1台可能、また近所に貸し駐車場有(年間21,799円)。
・建物部分の一部が借地(106.99㎡)につき、借地料(年間22,750円)
・テレビは共同アンテナを利用し、利用料(年間3,000円)。固定資産税(年間17,722円)。
取扱い会社
越乃エステート株式会社