物件画像を詳しく見る

東南の角地で生活便利な病院や銀行商店街がごく近くにある好立地物件です
物件概要
外壁や屋根リフォーム済で室内は各部屋ゆとりがあり。高品質な建物です。
-
物件コード
00237-200091
-
物件名
大町3売家
-
交通
駅:妙高はねうまライン 高田駅から徒歩8分
-
所在地
新潟県上越市大町3丁目1-13
物件へのルート表示
-
物件種別
中古一戸建て
-
構造
木造鉄筋コン
-
階建
地上3階建
-
建ぺい率/容積率
80%/500%
-
建物面積
394.64㎡
/119.37坪
-
土地面積
171.2㎡
/51.78坪
-
築年月
1993年10月(築32年)
-
入居時期
10月頃引渡し可
-
用途地域
商業地域
-
地目
宅地
-
都市計画
市街化区域
-
形状
-
-
道路
南側公道6m東側公道7.2m
-
私道
-
-
その他の制限
-
物件詳細情報
-
所在階/階数
-
-
号室
-
-
販売価格
15,500,000円
-
方位
南東
-
間取り
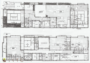
7LDK (和室:8畳、8畳、6畳) (洋室:5.5、9.5、9.5、12.5)、LDK19
-
専有面積
-
-
バルコニー面積
-
-
その他面積
-
-
駐車場
-
-
管理費
-
-
修繕積立金
-
-
現況
空家
-
仲介手数料
577,500円
-
利用制限
-
-
学校区
大町小学校(90m)・城東中学校(1,378m)
-
設備
角地、日当り良好、新築時図面あり、LDK15帖以上、駐車2台可能、駐車場融雪設備あり、南向き、複層ガラス、システムキッチン、追いだき機能付き、温水洗浄便座、エアコンあり、床暖房、都市ガス、下水道、全居室収納あり、CATV、2世帯向き
-
取引態様
一般
-
情報登録日
2025/07/10
-
次回更新予定日
2025/10/27
-
取引条件有効期限
2025/08/31
備考
本町商店街の裏通りに面しており東南の角地の好立地です。屋根はステンレス葺、1階は車庫兼倉庫で2階3階が住居部分となっております。室内は手入れ良好でリフォームは少なくて済みます。また造作は高品質な材料を使っておりステータスを感じます。
現在8月末まで賃貸中で家財道具が整理中のため室内写真の公開はしておりません。
取扱い会社
有限会社 春日土地建物
-
TEL
0120-178-153
-
所在地
新潟県上越市本町4-2-19
-
交通
妙高はねうまライン高田駅
-
営業時間
10:00~18:00/定休日:水・第一第三日曜日,祝日
-
免許番号
新潟県知事(10)第2950号
-
所属団体名
公社 新潟県宅地建物取引協会 上越支部
-
取引態様
一般