物件画像を詳しく見る

見附市今町5丁目でリノベ住宅が出ました♬今町小・中学校・スーパー・コンビニ徒歩圏内で利便性良好♬車3台駐車可能(*‘∀‘)北東角地、前面道路も融雪完備になっております。耐震補強済、住宅ローン控除対象です。
物件概要
融資相談も承っております。お気軽にお問合せください(^^)/※物件から弊社事務所まで車で約2~3分です。
-
物件コード
00232-200134
-
物件名
見附市今町5丁目【リノベ住宅】
-
交通
駅:信越線 見附駅から徒歩30分
-
所在地
新潟県見附市今町5丁目39-52
物件へのルート表示
-
物件種別
中古一戸建て
-
構造
木造
-
階建
地上2階建
-
建ぺい率/容積率
60%/200%
-
建物面積
135.79㎡
/41.07坪
-
土地面積
205.59㎡
/62.19坪
-
築年月
1980年3月(築46年)
-
入居時期
相談
-
用途地域
準工業地域
-
地目
宅地
-
都市計画
市街化区域
-
形状
間口 14.22m × 奥行 12.83m
-
道路
公道(東6.0m/北6.0m)
-
私道
-
-
その他の制限
-
物件詳細情報
-
所在階/階数
-
-
号室
-
-
販売価格
21,980,000円
-
方位
北東
-
間取り
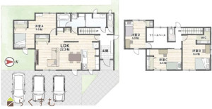
4LDK (洋室:9.5、8.6、6.5、6.0)、LDK22.3
-
専有面積
-
-
バルコニー面積
-
-
その他面積
-
-
駐車場
-
-
管理費
-
-
修繕積立金
-
-
現況
空家
-
仲介手数料
704,496円
-
利用制限
-
-
学校区
今町小学校(566m)・今町中学校(664m)
-
設備
角地、閑静な住宅街、スーパー近く、LDK15帖以上、全室フローリング、駐車2台可能、駐車3台以上可能、TVインターホン、複層ガラス、システムキッチン、浄水器、食器洗浄乾燥機、3口コンロ、追いだき機能付き、浴室乾燥機、バス1坪以上、温水洗浄便座、トイレ2か所以上、シャワー付き洗面台、エアコンあり、都市ガス、上水道、下水道、ウォークインクローゼット、全居室収納あり、シューズBOX、内装リフォーム済み、外装リフォーム済み、リノベーション物件
-
取引態様
一般
-
情報登録日
2026/05/02
-
次回更新予定日
2026/06/05
-
取引条件有効期限
2025/12/31
備考
■4SLDK+駐車3台可能!■耐震改修、断熱改修済■住宅設備すべて新品■北東角地■スーパー、コンビニ徒歩圏内■年間固定資産税額44,960円
※ローンシュミレーション※
2,198万円/40年返済/変動金利1.125%/月々56,886円
2,198万円/35年返済/変動金利1.125%/月々63,335円
2,198万円/30年返済/変動金利1.125%/月々71,965円
取扱い会社
合同会社 さくら中央不動産