
長岡市下々条町【中古住宅】 詳細
お気に入り
追加済み
物件画像を詳しく見る

黒条市小学校の築浅のログハウスが出ました(^^♪エアコン3台+薪ストーブ完備・オール無垢材で温かみのあるお家です(*‘∀‘)前面道路融雪完備で冬場の雪も安心です(*^^*)
物件概要
お気軽にお問合せください(^^)/
-
物件コード
00232-200131
-
物件名
長岡市下々条町【中古住宅】
-
交通
駅:信越線 押切駅から徒歩28分、バス:大野から徒歩2分
-
所在地
新潟県長岡市下々条町2484-9
物件へのルート表示
-
物件種別
中古一戸建て
-
構造
木造
-
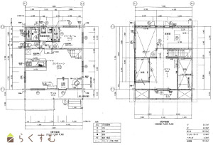
階建
地上2階建
-
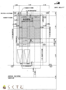
建ぺい率/容積率
60%/200%
-
建物面積
105.62㎡
/31.95坪
-
土地面積
222.98㎡
/67.45坪
-
築年月
2014年10月(築11年)
-
入居時期
随時入居(引き渡し)可
-
用途地域
第2種中高層住居専用地域
-
地目
宅地
-
都市計画
-
-
形状
間口 12.38m × 奥行 17.99m
-
道路
長岡市道(8.1m)
-
私道
-
-
その他の制限
-
物件詳細情報
-
所在階/階数
-
-
号室
-
-
販売価格
22,000,000円
-
方位
西
-
間取り
3LDK (洋室:5.38、13.91、9.55)、LDK20.91
-
専有面積
-
-
バルコニー面積
-
-
その他面積
-
-
駐車場
-
-
管理費
-
-
修繕積立金
-
-
現況
空家
-
仲介手数料
792,000円
-
利用制限
-
-
学校区
黒条小学校(667m)・堤岡中学校(249m)
-
設備
閑静な住宅街、スーパー近く、LDK15帖以上、全室フローリング、築15年以内、駐車3台以上可能、TVインターホン、複層ガラス、システムキッチン、IHクッキングヒーター、3口コンロ、追いだき機能付き、バス1坪以上、温水洗浄便座、シャワー付き洗面台、エアコンあり、24時間換気システム、上水道、下水道、ウォークインクローゼット、全居室収納あり、床下収納、即引き渡し可能
-
取引態様
一般
-
情報登録日
2025/10/07
-
次回更新予定日
2025/10/27
-
取引条件有効期限
2025/12/31
備考
※契約不適合免責
※残置物処分後お引渡し
取扱い会社
合同会社 さくら中央不動産
Copyright (C) 株式会社 コモンライフ・コーポレーション. All Rights Reserved.
不動産検索サイト「らくすむ」及び関連サイトに記載の不動産情報は、会員規約に則り、情報提供会社様の責任のもとに発信されております。
不動産の賃借、購入に関しては賃借者、購入者ご自身が情報を確認され、会社企業様から説明を受けられたうえで判断をお願いいたします。
不動産検索サイト「らくすむ」及び関連サイトに記載の不動産情報、写真、デザイン、コンテンツなどの無断転載・転用・複製など禁止します。