
三条市興野2丁目 売店舗・事務所 詳細
お気に入り
追加済み
物件画像を詳しく見る

東三条駅まで徒歩13分、通勤・通学に便利な立地。スーパーやドラッグストアにも近く、生活利便性も良好です!
物件概要
シャワー設備・トイレ有。元英会話教室です。
-
物件コード
00231-200145
-
物件名
三条市興野2丁目 売店舗・事務所
-
交通
駅:信越線 東三条駅から徒歩13分
-
所在地
新潟県三条市興野2丁目2-31
物件へのルート表示
-
物件種別
投資物件・その他
-
物件区分
その他
-
構造
鉄骨
-
階建
地上3階建
-
建ぺい率/容積率
60%/200%
-
建物面積
156㎡
/47.19坪
-
土地面積
262.82㎡
/79.5坪
-
築年月
1995年5月(築30年)
-
入居時期
随時入居(引き渡し)可
-
用途地域
第1種住居地域
-
地目
宅地
-
都市計画
非線引き都市計画区域
-
形状
-
-
道路
東側約6.3m公道
-
私道
-
-
その他の制限
-
物件詳細情報
-
所在階/階数
-
-
号室
-
-
販売価格
15,000,000円
-
表面利回り
(満室想定時)
-
-
満室想定年収
-
(想定月収:
-
)
-
現行利回り
-
-
現行年間年収
-
-
住戸数
-
-
方位
-
-
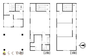
間取り
-
-
専有面積
-
-
バルコニー面積
-
-
その他面積
-
-
駐車場
無料(5台以上可)
-
管理費
-
-
修繕積立金
-
-
現況
空家
-
仲介手数料
561,000円
-
利用制限
-
-
学校区
一ノ木戸小学校(657m)・第二中学校(657m)
-
設備
駐車場(近隣含む)、公営水道、都市ガス、浄化槽
-
取引態様
一般
-
情報登録日
2025/09/17
-
次回更新予定日
2026/04/17
-
取引条件有効期限
2025/12/31
備考
現況と異なる場合は現況優先
取扱い会社
株式会社にいがた不動産
Copyright (C) 株式会社 コモンライフ・コーポレーション. All Rights Reserved.
不動産検索サイト「らくすむ」及び関連サイトに記載の不動産情報は、会員規約に則り、情報提供会社様の責任のもとに発信されております。
不動産の賃借、購入に関しては賃借者、購入者ご自身が情報を確認され、会社企業様から説明を受けられたうえで判断をお願いいたします。
不動産検索サイト「らくすむ」及び関連サイトに記載の不動産情報、写真、デザイン、コンテンツなどの無断転載・転用・複製など禁止します。