
長岡市神田町 中古住宅 詳細
お気に入り
追加済み
物件画像を詳しく見る

駅チカ×車庫付き 暮らしやすさがちょうどいい家
物件概要
駅近でもゆとりのある暮らしを実現。車庫付きで使い勝手◎
-
物件コード
00221-200258
-
物件名
長岡市神田町 中古住宅
-
交通
駅:上越新幹線 長岡駅から徒歩11分、バス:神田1丁目から徒歩1分
-
所在地
新潟県長岡市神田町1丁目2-11
物件へのルート表示
-
物件種別
中古一戸建て
-
構造
木造
-
階建
地上2階建
-
建ぺい率/容積率
70%/200%
-
建物面積
59.49㎡
/17.99坪
-
土地面積
72.23㎡
/21.84坪
-
築年月
不詳
-
入居時期
相談
-
用途地域
近隣商業地域
-
地目
宅地
-
都市計画
市街化区域
-
形状
-
-
道路
-
-
私道
-
-
その他の制限
準防火地域
物件詳細情報
-
所在階/階数
-
-
号室
-
-
販売価格
3,500,000円
-
方位
-
-
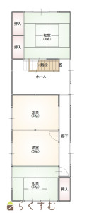
間取り
5DK
-
専有面積
-
-
バルコニー面積
-
-
その他面積
-
-
駐車場
-
-
管理費
-
-
修繕積立金
-
-
現況
空家
-
仲介手数料
330,000円
-
利用制限
-
-
学校区
阪之上小学校(831m)・東中学校(892m)
-
設備
日当り良好、スーパー近く、都市ガス、上水道、下水道
-
取引態様
専任
-
情報登録日
2026/03/16
-
次回更新予定日
2026/06/05
-
取引条件有効期限
2025/12/31
備考
取扱い会社
戸建エース / (株)アップデート不動産
Copyright (C) 株式会社 コモンライフ・コーポレーション. All Rights Reserved.
不動産検索サイト「らくすむ」及び関連サイトに記載の不動産情報は、会員規約に則り、情報提供会社様の責任のもとに発信されております。
不動産の賃借、購入に関しては賃借者、購入者ご自身が情報を確認され、会社企業様から説明を受けられたうえで判断をお願いいたします。
不動産検索サイト「らくすむ」及び関連サイトに記載の不動産情報、写真、デザイン、コンテンツなどの無断転載・転用・複製など禁止します。