
長岡市土合 中古物件 詳細
お気に入り
追加済み
物件画像を詳しく見る

【7DK×ガレージ完備】冬の除雪を軽減するガレージ付。部屋数7部屋で大人数世帯でもゆったり過ごせる大空間。
物件概要
-
物件コード
00221-200246
-
物件名
長岡市土合 中古物件
-
交通
駅:信越線 長岡駅から徒歩23分、バス:帝京長岡中学高校前から徒歩5分
-
所在地
新潟県長岡市土合1丁目5-19
物件へのルート表示
-
物件種別
中古一戸建て
-
構造
鉄骨
-
階建
地上3階建
-
建ぺい率/容積率
60%/200%
-
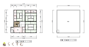
建物面積
164.99㎡
/49.9坪
-
土地面積
99.17㎡
/29.99坪
-
築年月
1982年7月(築43年)
-
入居時期
相談
-
用途地域
第1種低層住居専用地域
-
地目
宅地
-
都市計画
市街化区域
-
形状
-
-
道路
-
-
私道
-
-
その他の制限
-
物件詳細情報
-
所在階/階数
-
-
号室
-
-
販売価格
9,800,000円
-
方位
-
-
間取り
7DK
-
専有面積
-
-
バルコニー面積
-
-
その他面積
-
-
駐車場
-
-
管理費
-
-
修繕積立金
-
-
現況
居住中
-
仲介手数料
389,400円
-
利用制限
-
-
学校区
豊田小学校(698m)・旭岡中学校(792m)
-
設備
閑静な住宅街、駐車2台可能、都市ガス、上水道、下水道、シューズBOX、2世帯向き
-
取引態様
専任
-
情報登録日
2026/01/27
-
次回更新予定日
2026/04/18
-
取引条件有効期限
2025/10/31
備考
取扱い会社
戸建エース / (株)アップデート不動産
Copyright (C) 株式会社 コモンライフ・コーポレーション. All Rights Reserved.
不動産検索サイト「らくすむ」及び関連サイトに記載の不動産情報は、会員規約に則り、情報提供会社様の責任のもとに発信されております。
不動産の賃借、購入に関しては賃借者、購入者ご自身が情報を確認され、会社企業様から説明を受けられたうえで判断をお願いいたします。
不動産検索サイト「らくすむ」及び関連サイトに記載の不動産情報、写真、デザイン、コンテンツなどの無断転載・転用・複製など禁止します。