
柏崎市日吉町 中古住宅 詳細
お気に入り
追加済み
物件画像を詳しく見る

【築5年4LDK】パントリーやウォークインクローゼット、外部収納など、収納たっぷりのお家です。3~4人暮らしの方にオススメ
物件概要
-
物件コード
00221-200245
-
物件名
柏崎市日吉町 中古住宅
-
交通
駅:越後線 東柏崎駅から徒歩15分、バス:北半田1丁目から徒歩5分
-
所在地
新潟県柏崎市日吉町2番66-3
物件へのルート表示
-
物件種別
中古一戸建て
-
構造
木造
-
階建
地上2階建
-
建ぺい率/容積率
60%/200%
-
建物面積
118.42㎡
/35.82坪
-
土地面積
180.99㎡
/54.74坪
-
築年月
2020年5月(築6年)
-
入居時期
相談
-
用途地域
第1種住居地域
-
地目
宅地
-
都市計画
非線引き都市計画区域
-
形状
-
-
道路
南側6.0m:位置指定道路
-
私道
-
-
その他の制限
-
物件詳細情報
-
所在階/階数
-
-
号室
-
-
販売価格
25,800,000円
-
方位
-
-
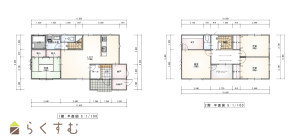
間取り
4LDK (和室:6畳) (洋室:8、6、6)、LDK17.0
-
専有面積
-
-
バルコニー面積
-
-
その他面積
-
-
駐車場
-
-
管理費
-
-
修繕積立金
-
-
現況
居住中
-
仲介手数料
917,400円
-
利用制限
-
-
学校区
比角小学校(182m)・第二中学校(588m)
-
設備
日当り良好、閑静な住宅街、新築時図面あり、LDK15帖以上、築10年以内、築15年以内、駐車2台可能、駐車3台以上可能、TVインターホン、複層ガラス、デインプルキー、システムキッチン、IHクッキングヒーター、食器洗浄乾燥機、3口コンロ、追いだき機能付き、バス1坪以上、温水洗浄便座、トイレ2か所以上、シャワー付き洗面台、エアコンあり、都市ガス、上水道、下水道、ウォークインクローゼット、全居室収納あり、シューズBOX、シューズインクローゼット
-
取引態様
専任
-
情報登録日
2025/10/13
-
次回更新予定日
2026/06/06
-
取引条件有効期限
2025/12/12
備考
取扱い会社
戸建エース / (株)アップデート不動産
Copyright (C) 株式会社 コモンライフ・コーポレーション. All Rights Reserved.
不動産検索サイト「らくすむ」及び関連サイトに記載の不動産情報は、会員規約に則り、情報提供会社様の責任のもとに発信されております。
不動産の賃借、購入に関しては賃借者、購入者ご自身が情報を確認され、会社企業様から説明を受けられたうえで判断をお願いいたします。
不動産検索サイト「らくすむ」及び関連サイトに記載の不動産情報、写真、デザイン、コンテンツなどの無断転載・転用・複製など禁止します。