
土樽ログハウス 詳細
お気に入り
追加済み
物件画像を詳しく見る

中里スノーリゾートマウンテンテラスまで徒歩2分
物件概要
-
物件コード
00199-200025
-
物件名
土樽ログハウス
-
交通
駅:上越線 越後中里駅から徒歩4分、バス:中里駅角から徒歩11分
-
所在地
新潟県南魚沼郡湯沢町土樽5378-1
物件へのルート表示
-
物件種別
中古一戸建て
-
構造
木造鉄筋コン
-
階建
地上2階地下1階建
-
建ぺい率/容積率
70%/300%
-
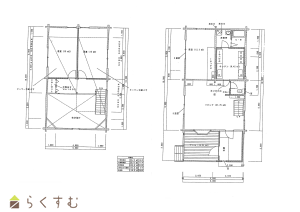
建物面積
105.5㎡
/31.91坪
-
土地面積
1,052.1㎡
/318.26坪
-
築年月
2000年7月(築25年)
-
入居時期
随時入居(引き渡し)可
-
用途地域
用途の指定のない地域
-
地目
宅地 (現状:廃屋一棟あり)
-
都市計画
非線引き都市計画区域
-
形状
間口 20m × 奥行 44m
-
道路
幅員4メートル(町道)
-
私道
-
-
その他の制限
-
物件詳細情報
-
所在階/階数
-
-
号室
-
-
販売価格
10,500,000円
-
方位
東
-
間取り
3LDK
-
専有面積
-
-
バルコニー面積
-
-
その他面積
-
-
駐車場
-
-
管理費
-
-
修繕積立金
-
-
現況
空家
-
仲介手数料
412,500円
-
利用制限
-
-
学校区
土樽小学校(853m)・湯沢中学校(2,274m)
-
設備
日当り良好、閑静な住宅街、LDK15帖以上、全室フローリング、駐車3台以上可能、複層ガラス
-
取引態様
専属専任
-
情報登録日
2026/01/05
-
次回更新予定日
2026/04/18
-
取引条件有効期限
2026/06/30
備考
取扱い会社
アイワ不動産
Copyright (C) 株式会社 コモンライフ・コーポレーション. All Rights Reserved.
不動産検索サイト「らくすむ」及び関連サイトに記載の不動産情報は、会員規約に則り、情報提供会社様の責任のもとに発信されております。
不動産の賃借、購入に関しては賃借者、購入者ご自身が情報を確認され、会社企業様から説明を受けられたうえで判断をお願いいたします。
不動産検索サイト「らくすむ」及び関連サイトに記載の不動産情報、写真、デザイン、コンテンツなどの無断転載・転用・複製など禁止します。