
岩木 中古住宅 詳細
お気に入り
追加済み
物件画像を詳しく見る
物件概要
-
物件コード
00159-200199
-
物件名
岩木 中古住宅
-
交通
駅:妙高はねうまライン 春日山駅から徒歩38分、バス:岩木入口から徒歩6分
-
所在地
新潟県上越市岩木508-4
物件へのルート表示
-
物件種別
中古一戸建て
-
構造
木造
-
階建
地上2階建
-
建ぺい率/容積率
60%/200%
-
建物面積
69.55㎡
/21.03坪
-
土地面積
247.92㎡
/74.99坪
-
築年月
2009年5月(築17年)
-
入居時期
相談
-
用途地域
第1種住居地域
-
地目
宅地 (現状:宅地)
-
都市計画
市街化区域
-
形状
間口 12m × 奥行 14m
-
道路
北側4.5m
-
私道
-
-
その他の制限
-
物件詳細情報
-
所在階/階数
-
-
号室
-
-
販売価格
15,500,000円
-
方位
南
-
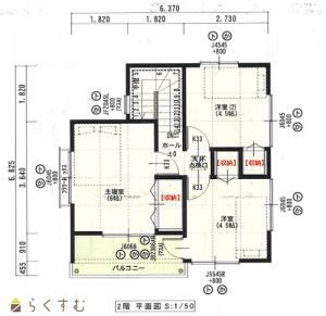
間取り
3LDK (洋室:6、4.5、4.5)、LD6
-
専有面積
-
-
バルコニー面積
-
-
その他面積
-
-
駐車場
-
-
管理費
-
-
修繕積立金
-
-
現況
空家
-
仲介手数料
577,500円
-
利用制限
-
-
学校区
春日小学校(2,033m)・春日中学校(2,613m)
-
設備
南向き
-
取引態様
一般
-
情報登録日
2025/11/28
-
次回更新予定日
2026/06/05
-
取引条件有効期限
2025/12/28
備考
取扱い会社
アスナビ地所株式会社
Copyright (C) 株式会社 コモンライフ・コーポレーション. All Rights Reserved.
不動産検索サイト「らくすむ」及び関連サイトに記載の不動産情報は、会員規約に則り、情報提供会社様の責任のもとに発信されております。
不動産の賃借、購入に関しては賃借者、購入者ご自身が情報を確認され、会社企業様から説明を受けられたうえで判断をお願いいたします。
不動産検索サイト「らくすむ」及び関連サイトに記載の不動産情報、写真、デザイン、コンテンツなどの無断転載・転用・複製など禁止します。