
長岡市学校町2丁目 売土地 詳細
お気に入り
追加済み
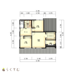
建物プラン例:参考建物価格 2270.4万円(税込)
物件画像を詳しく見る

~~ 建築条件相談可能! ~~ ◆決算価格キャンペーン実施中! ◆長岡駅まで徒歩圏内(徒歩約13分/1000m) ◆アクロスプラザ長岡、業務スーパーまで1km圏内 ◆角地(北、東向き)
物件概要
-
物件コード
00154-200706
-
物件名
長岡市学校町2丁目 売土地
-
交通
駅:信越線 長岡駅から徒歩14分、バス:学校町1丁目から徒歩3分
-
所在地
新潟県長岡市学校町2丁目6番地22
物件へのルート表示
-
物件種別
売土地・分譲地
-
物件区分
売土地
-
構造
-
-
階建
-
-
建ぺい率/容積率
60%/200%
-
建物面積
-
-
土地面積
143.02㎡
/43.26坪
-
築年月
-
-
入居時期
相談
-
用途地域
第2種中高層住居専用地域
-
地目
宅地
-
都市計画
市街化区域
-
形状
間口 10.75m × 奥行 13.18m
-
道路
公道 北 幅員7.3m/公道 東 幅員4.3m
-
私道
-
-
その他の制限
法22条指定区域、第二種高度地区
物件詳細情報
-
所在階/階数
-
-
号室
-
-
販売価格
9,980,000円
-
方位
-
-
間取り
-
-
専有面積
-
-
バルコニー面積
-
-
その他面積
-
-
駐車場
-
-
管理費
-
-
修繕積立金
-
-
現況
更地
-
仲介手数料
なし
-
利用制限
-
-
学校区
四郎丸小学校(459m)・南中学校(1,173m)
-
設備
角地、前道6m以上、学校近く、建築条件なし、所有権、下水道(前面道路)、電気、都市ガス(宅地内)、上水道(宅地内)
-
取引態様
売主
-
情報登録日
2026/03/31
-
次回更新予定日
2026/04/20
-
取引条件有効期限
2026/03/31
備考
【決算価格キャンペーン】
条件:2026年7月末までにキャンペーン対象物件でご成約・お引渡を完了していただいたお客様を対象に、
売買価格1098万円(税込)から100万円値引きした998万円(税込)で販売いたします。
《条件》
・2026年7月末までにキャンペーン対象物件でご成約・お引渡を完了していただいた方。
・当社にお問合せ頂いた方
・キャンペーン対象期間を過ぎた場合は、値下げ前の価格での販売となります。
●建築条件について
・本物件はハーバーハウス株式会社の建築条件付き土地で、建築条件付き価格は998万円です。
建築条件を外しての販売も可能です。(建築条件を外した販売価格は1098万円となります。)
●その他
・汚水マスは売主負担で新設予定です。
【建物プラン例】
物件参考価格 2270万円
1階面積 約57.13㎡(約17.28坪)
2階面積 約44.02㎡(約13.31坪)
延床面積 約101.15㎡(約30.59坪)
「建物参考価格」は以下のものをすべて含んだ【コミコミ価格】です!
本体工事費 土工・基礎工事 ・木工事・屋根・板金工事・タイル工事・外壁工事・左官工事・建具工事・内装工事・塗装工事・雑工事・電気設備工事・給排水衛生設備工事 ・全室照明器具 付帯工事費 敷地調査・地盤調査・地盤改良工事・仮設工事・外構工事・屋外電気工事・屋外給排水工事 諸経費その他 設計費・現場管理費・諸経費(工事保険、営業経費など)
標準設備 システムキッチン・IHクッキングヒーター・システムバス・洗面化粧台・エコキュート・玄関ドア・玄関収納・全室建具・全室照明 ※LED・各室収納・暖房便座ウォシュレットトイレ・2階暖房便座ウォシュレットトイレ・断熱材・断熱サッシetc 標準仕様 次世代省エネルギー基準適合・オール電化仕様・高気密・高断熱仕様・換気計画・高耐震、高耐久仕様・耐雪対策・結露、カビ、ダニ対策・シックハウス対策・シロアリ対策・防火対策etc
取扱い会社
ハーバーエステート株式会社
Copyright (C) 株式会社 コモンライフ・コーポレーション. All Rights Reserved.
不動産検索サイト「らくすむ」及び関連サイトに記載の不動産情報は、会員規約に則り、情報提供会社様の責任のもとに発信されております。
不動産の賃借、購入に関しては賃借者、購入者ご自身が情報を確認され、会社企業様から説明を受けられたうえで判断をお願いいたします。
不動産検索サイト「らくすむ」及び関連サイトに記載の不動産情報、写真、デザイン、コンテンツなどの無断転載・転用・複製など禁止します。