
【中古住宅】新潟市北区松浜3丁目 カーポート付戸建 詳細
お気に入り
追加済み
物件画像を詳しく見る

南向きの日当たり良好。小学校・中学校・バス停徒歩5分圏内の立地も魅力です。
物件概要
落ち着いた雰囲気の内外装。
-
物件コード
00125-200095
-
物件名
【中古住宅】新潟市北区松浜3丁目 カーポート付戸建
-
交通
駅:白新線 新崎駅から徒歩61分、バス:松浜中学前から徒歩2分
-
所在地
新潟県新潟市北区松浜3丁目
物件へのルート表示
-
物件種別
中古一戸建て
-
構造
木造
-
階建
地上2階建
-
建ぺい率/容積率
60%/200%
-
建物面積
124.2㎡
/37.57坪
-
土地面積
286.4㎡
/86.63坪
-
築年月
2018年4月(築8年)
-
入居時期
相談
-
用途地域
第1種中高層住居専用地域
-
地目
宅地 (現状:宅地)
-
都市計画
市街化区域
-
形状
間口 15.95m × 奥行 18.26m
-
道路
市道 北1-42号線 幅員4m
-
私道
-
-
その他の制限
建築基準法第22条・道路斜線制限有・隣地斜線制限有
物件詳細情報
-
所在階/階数
-
-
号室
-
-
販売価格
32,000,000円
-
方位
南
-
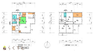
間取り
4LDK (和室:4.5畳) (洋室:12、6、6)、南向きの日当たり良好。小学校・中学校・バス停徒歩5分圏内の立地も魅力です。
-
専有面積
-
-
バルコニー面積
-
-
その他面積
2.48㎡
/0.75坪
バルコニー
-
駐車場
-
-
管理費
-
-
修繕積立金
-
-
現況
居住中
-
仲介手数料
1,122,000円
-
利用制限
-
-
学校区
松浜小学校(278m)・松浜中学校(291m)
-
設備
高台に立地、日当り良好、閑静な住宅街、LDK15帖以上、築10年以内、駐車3台以上可能、南向き、TVインターホン、複層ガラス、食器洗浄乾燥機、3口コンロ、追いだき機能付き、温水洗浄便座、トイレ2か所以上、シャワー付き洗面台、24時間換気システム、ルーフバルコニー、ウォークインクローゼット、シューズインクローゼット
-
取引態様
一般
-
情報登録日
2024/11/05
-
次回更新予定日
2026/06/06
-
取引条件有効期限
2025/06/30
備考
取扱い会社
株式会社フォレス・タカダ
-
TEL
0258-39-2919
-
所在地
新潟県長岡市摂田屋5-6-22
-
交通
信越線〔宮内駅〕徒歩13分
-
営業時間
8:30~17:30/定休日:隔週土曜・日曜日・祝/会社カレンダーによる
-
免許番号
新潟県知事(8)第3591号
-
所属団体名
新潟県宅地建物取引業協会 長岡支部
-
取引態様
一般
Copyright (C) 株式会社 コモンライフ・コーポレーション. All Rights Reserved.
不動産検索サイト「らくすむ」及び関連サイトに記載の不動産情報は、会員規約に則り、情報提供会社様の責任のもとに発信されております。
不動産の賃借、購入に関しては賃借者、購入者ご自身が情報を確認され、会社企業様から説明を受けられたうえで判断をお願いいたします。
不動産検索サイト「らくすむ」及び関連サイトに記載の不動産情報、写真、デザイン、コンテンツなどの無断転載・転用・複製など禁止します。