物件画像を詳しく見る

スーパーや銀行等も近く、利便性抜群の好立地。1階車庫・居住エリアは2階3階です。
物件概要
スーパーや銀行等も近く、利便性抜群の好立地。1階車庫・居住エリアは2階3階です。
-
物件コード
00125-200094
-
物件名
東宮内町中古建て
-
交通
駅:上越線 宮内駅から徒歩9分、バス:東宮内から徒歩3分
-
所在地
新潟県長岡市東宮内町3153-2
物件へのルート表示
-
物件種別
中古一戸建て
-
構造
木造・鉄骨造
-
階建
地上3階建
-
建ぺい率/容積率
60%/200%
-
建物面積
227.7㎡
/68.87坪
-
土地面積
149.83㎡
/45.32坪
-
築年月
1986年3月(築39年)
-
入居時期
相談
-
用途地域
第1種住居地域
-
地目
宅地
-
都市計画
市街化区域
-
形状
-
-
道路
市道398号線幅員5.9m 消雪設備あり
-
私道
なし
-
その他の制限
建築基準法第22条・まちなか居住区域・三種高度地区
物件詳細情報
-
所在階/階数
-
-
号室
-
-
販売価格
14,900,000円
-
方位
西
-
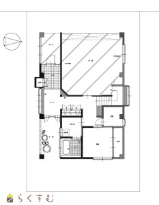
間取り
6DK (和室:8.0畳、8.0畳、8.0畳、8.0畳) (洋室:6.0、8.0)、DK8.0
-
専有面積
-
-
バルコニー面積
-
-
その他面積
-
-
駐車場
-
-
管理費
-
-
修繕積立金
-
-
現況
空家
-
仲介手数料
557,700円
-
利用制限
-
-
学校区
宮内小学校(445m)・宮内中学校(598m)
-
設備
閑静な住宅街、スーパー近く、駐車2台可能、都市ガス、上水道、下水道、2世帯向き
-
取引態様
一般
-
情報登録日
2025/06/20
-
次回更新予定日
2025/10/27
-
取引条件有効期限
2025/09/30
備考
1階:車庫・物置・浴室/2階:Dキッチン・8帖和室×3室・トイレ/3階:8帖和室×1室・8帖洋室×1室・6帖洋室×1室・屋根裏部屋2室※3階のミニキッチン・トイレは現在使用できません。使用する場合は別途工事が必要です(買主負担) ■売主「契約不適合責任」免責 ■消雪組合費+町会費(買主負担)
取扱い会社
株式会社フォレス・タカダ
-
TEL
0258-39-2919
-
所在地
新潟県長岡市摂田屋5-6-22
-
交通
信越線〔宮内駅〕徒歩13分
-
営業時間
8:30~17:30/定休日:隔週土曜・日曜日・祝/会社カレンダーによる
-
免許番号
新潟県知事(8)第3591号
-
所属団体名
新潟県宅地建物取引業協会 長岡支部
-
取引態様
一般