物件画像を詳しく見る

静けさと利便性を兼ね備えた土手沿いの戸建て。1階ワンルームの伸びやかな空間に小上がり畳付き。周辺に買い物施設充実、千秋エリアへ車5分圏内、長岡北スマートICも利用しやすい立地です。
物件概要
-
賃料
8万円/月
-
管理費
なし
-
敷/礼
16万円/
なし
-
間取り
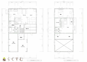
1LDK (和室:6畳) (洋室:8)、LDK約18.5
-
広さ
125.03㎡
/37.82坪
-
階建
地上2階建
-
築年数
1996年1月(築30年)
-
種別
アパート・マンション・一戸建て
-
住所
新潟県長岡市蓮潟2丁目14番7号
物件へのルート表示
-
交通
バス:蓮潟から徒歩10分
静けさと利便性を兼ね備えた土手沿いの戸建て。1階ワンルームの伸びやかな空間に小上がり畳付き。周辺に買い物施設充実、千秋エリアへ車5分圏内、長岡北スマートICも利用しやすい立地です。
-
物件コード
00125-100031
-
物件名
長岡市蓮潟2貸家
-
交通
バス:蓮潟から徒歩10分
-
所在地
新潟県長岡市蓮潟2丁目14番7号
物件へのルート表示
-
物件種別
アパート・マンション・一戸建て
-
総戸数
1戸
-
構造
木造
-
階建
地上2階建
-
所在階/階数
-
-
号室
-
-
専有面積
125.03㎡
/37.82坪
-
方位
指定なし
-
間取り
1LDK (和室:6畳) (洋室:8)、LDK約18.5
-
賃料
8万円/月
-
管理費
-
-
礼金
-
-
敷金
16万円
-
共益費
-
-
ほか初期費用
-
-
その他諸費用
消雪維持費(負担借主)消雪組合から納付連絡
-
更新料
-
-
火災(家財)保険
借主実費負担
-
駐車場
屋根有1台・無1台
-
町内費
借主実費負担
-
バイク料金
-
-
鍵交換費
-
-
清掃料
-
-
更新事務手数料
-
-
保証区分
連帯保証人+保証会社
-
保証会社
区分:加入要
保証会社名:その他
(ジェイリースまたは日本セーフティ)
各保証会社の規定・プランによる
-
連帯保証人
[区分]
要
65歳以下/就労者/本人確認資料・印鑑証明書(原本)の提出が可能な方
-
仲介手数料
88,000円
-
手数料負担割合
貸主:-%
借主:100%
-
手数料配分割合
元付:50%
客付:50%
-
築年月
1996年1月(築30年)
-
利用制限
法人:可、学生:不可、単身者:不可、二人入居:可、シニア(60歳以上)入居:不可、子供:可、ペット:相談、楽器:不可、事務所利用:不可、ルームシェア:相談
-
学校区
上川西小学校(1,268m)・江陽中学校(1,730m)
-
設備
閑静な住宅街、日当り良好、デザイナーズ、LDK12畳以上、駐車2台可、専用庭、システムキッチン、2口コンロ、バストイレ別、追いだき機能付き、トイレ2か所以上、温水洗浄便座、暖房便座、エアコン、都市ガス、公営水道、下水、洗濯機置場 室内、脱衣所、玄関収納、ウォークインクロゼット、CATV、各居室照明、保証会社利用可能、ペット相談可、保証会社要加入
-
入居時期
2026年5月1日以降(修繕状況で変更あり)
-
取引態様
仲介
-
情報登録日
2026/03/26
-
次回更新予定日
2026/04/18
備考
・ペット(小型犬or猫 2匹まで)・車庫の高さ、車幅、長さは事前に要確認、TV視聴はケーブルテレビをご契約いただきます(借主様直接申込)
取扱い会社
株式会社フォレス・タカダ
-
TEL
0258-39-2919
-
所在地
新潟県長岡市摂田屋5-6-22
-
交通
信越線〔宮内駅〕徒歩13分
-
営業時間
8:30~17:30/定休日:隔週土曜・日曜日・祝/会社カレンダーによる
-
免許番号
新潟県知事(8)第3591号
-
所属団体名
新潟県宅地建物取引業協会 長岡支部
-
取引態様
仲介