
曲新町1丁目 売住宅 詳細
お気に入り
追加済み
物件画像を詳しく見る
物件概要
-
物件コード
00117-200125
-
物件名
曲新町1丁目 売住宅
-
交通
駅:信越線 宮内駅から徒歩14分
-
所在地
新潟県長岡市曲新町1丁目4-13
物件へのルート表示
-
物件種別
中古一戸建て
-
構造
木造
-
階建
地上2階建
-
建ぺい率/容積率
50%/100%
-
建物面積
106.75㎡
/32.29坪
-
土地面積
149.3㎡
/45.16坪
-
築年月
1972年5月(築54年)
-
入居時期
相談
-
用途地域
第1種低層住居専用地域
-
地目
宅地 (現状:宅地)
-
都市計画
市街化区域
-
形状
間口 9.01m × 奥行 16.57m
-
道路
南向き 位置指定道路 4m 消雪あり
-
私道
-
-
その他の制限
-
物件詳細情報
-
所在階/階数
-
-
号室
-
-
販売価格
6,600,000円
-
方位
南
-
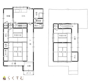
間取り
4DK (和室:8畳、8畳、6畳、6畳)、DK6
-
専有面積
-
-
バルコニー面積
-
-
その他面積
4.95㎡
/1.49坪
物置部屋
-
駐車場
-
-
管理費
-
-
修繕積立金
-
-
現況
居住中
-
仲介手数料
330,000円
-
利用制限
-
-
学校区
上組小学校(844m)・宮内中学校(935m)
-
設備
閑静な住宅街、駐車3台以上可能、南向き、ガスコンロ設置可能、追いだき機能付き、温水洗浄便座、エアコンあり、都市ガス、上水道、下水道、全居室収納あり
-
取引態様
仲介
-
情報登録日
2026/03/26
-
次回更新予定日
2026/06/05
-
取引条件有効期限
2026/04/30
備考
カーポート1台付き 前面道路消雪あり
取扱い会社
株式会社 棚橋不動産
Copyright (C) 株式会社 コモンライフ・コーポレーション. All Rights Reserved.
不動産検索サイト「らくすむ」及び関連サイトに記載の不動産情報は、会員規約に則り、情報提供会社様の責任のもとに発信されております。
不動産の賃借、購入に関しては賃借者、購入者ご自身が情報を確認され、会社企業様から説明を受けられたうえで判断をお願いいたします。
不動産検索サイト「らくすむ」及び関連サイトに記載の不動産情報、写真、デザイン、コンテンツなどの無断転載・転用・複製など禁止します。