
コーポ・ラルゴ 詳細
202号室
お気に入り
追加済み
物件画像を詳しく見る

駐車場1台込み☆ エアコン2台&モニター付きインターホン&ウォシュレット付
物件概要
-
賃料
5.2万円/月
-
管理費
なし
-
敷/礼
6万円/
なし
-
間取り
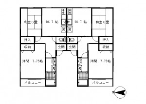
2DK (和室:6畳) (洋室:7.5)、Dk7
-
広さ
52.89㎡
/15.99坪
-
階建
地上2階建
-
築年数
2000年1月(築26年)
-
種別
アパート・マンション・一戸建て
-
住所
新潟県柏崎市小倉町10-6コーポ・ラルゴ202
物件へのルート表示
-
交通
駅:信越線東柏崎駅から徒歩7分、バス:諏訪町2丁目から徒歩2分
-
物件コード
00091-100204
-
物件名
コーポ・ラルゴ
-
交通
駅:信越線東柏崎駅から徒歩7分、バス:諏訪町2丁目から徒歩2分
-
所在地
新潟県柏崎市小倉町10-6コーポ・ラルゴ202
物件へのルート表示
-
物件種別
アパート・マンション・一戸建て
-
総戸数
-
-
構造
木造
-
階建
地上2階建
-
所在階/階数
2階/2階
-
号室
202号室
-
専有面積
52.89㎡
/15.99坪
-
方位
指定なし
-
間取り
2DK (和室:6畳) (洋室:7.5)、Dk7
-
賃料
5.2万円/月
-
管理費
-
-
礼金
-
-
敷金
6万円
-
共益費
300円
300円
-
ほか初期費用
-
-
その他諸費用
-
-
更新料
-
-
火災(家財)保険
18000円
-
駐車場
1台込み
-
町内費
1,000円
1,000円
-
バイク料金
-
-
鍵交換費
-
-
清掃料
-
-
更新事務手数料
11,000円
-
保証区分
保証会社のみ
-
保証会社
区分:加入要
保証会社名:ジェイリース
-
-
家賃保証金
44,240円
-
連帯保証人
[区分]
不要
-
-
仲介手数料
57,200円
-
手数料負担割合
貸主:-%
借主:100%
-
手数料配分割合
元付:50%
客付:50%
-
築年月
2000年1月(築26年)
-
利用制限
法人:可、学生:可、単身者:可、二人入居:可、シニア(60歳以上)入居:可、ペット:不可、楽器:不可
-
学校区
比角小学校(810m)・第二中学校(687m)
-
設備
閑静な住宅街、最上階、タイヤ置き場、駐車場1台無料、角住居、バストイレ別、洗面所独立、都市ガス、バルコニー、洗濯機置場 室内、脱衣所、玄関収納、ウォークインクロゼット、トランクルーム、BS端子・アンテナ、TVモニター付きインターホン、各居室照明、礼金不要、フリーレント(詳細は備考欄)
-
入居時期
相談
-
取引態様
仲介
-
情報登録日
2026/03/07
-
次回更新予定日
2026/04/21
備考
駐車場1台込み
取扱い会社
株式会社セイワ不動産
Copyright (C) 株式会社 コモンライフ・コーポレーション. All Rights Reserved.
不動産検索サイト「らくすむ」及び関連サイトに記載の不動産情報は、会員規約に則り、情報提供会社様の責任のもとに発信されております。
不動産の賃借、購入に関しては賃借者、購入者ご自身が情報を確認され、会社企業様から説明を受けられたうえで判断をお願いいたします。
不動産検索サイト「らくすむ」及び関連サイトに記載の不動産情報、写真、デザイン、コンテンツなどの無断転載・転用・複製など禁止します。