
大積1丁目売家 詳細
お気に入り
追加済み
物件画像を詳しく見る
物件概要
-
物件コード
00073-200073
-
物件名
大積1丁目売家
-
交通
駅:信越線 越後岩塚駅から徒歩93分、バス:大積から徒歩2分
-
所在地
新潟県長岡市大積町1丁目942-1
物件へのルート表示
-
物件種別
中古一戸建て
-
構造
木造
-
階建
地上2階建
-
建ぺい率/容積率
70%/200%
-
建物面積
201.76㎡
/61.03坪
-
土地面積
240.99㎡
/72.89坪
-
築年月
1973年8月(築52年)
-
入居時期
2025年10月1日
-
用途地域
無指定
-
地目
宅地 (現状:宅地)
-
都市計画
市街化調整区域
-
形状
間口 15m × 奥行 20m
-
道路
国道8号線
-
私道
-
-
その他の制限
-
物件詳細情報
-
所在階/階数
-
-
号室
-
-
販売価格
5,000,000円
-
方位
南東
-
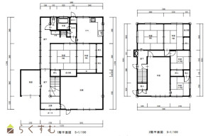
間取り
6DK (和室:8畳、8畳、6畳、6畳) (洋室:8、8)
-
専有面積
-
-
バルコニー面積
-
-
その他面積
-
-
駐車場
-
-
管理費
-
-
修繕積立金
-
-
現況
居住中
-
仲介手数料
231,000円
-
利用制限
-
-
学校区
大積小学校(338m)・青葉台中学校(2,667m)
-
設備
日当り良好、南向き、LPG、上水道、下水道、田舎暮らし
-
取引態様
専任
-
情報登録日
2025/08/25
-
次回更新予定日
2026/06/05
-
取引条件有効期限
2024/09/05
備考
取扱い会社
株式会社 丸藤
Copyright (C) 株式会社 コモンライフ・コーポレーション. All Rights Reserved.
不動産検索サイト「らくすむ」及び関連サイトに記載の不動産情報は、会員規約に則り、情報提供会社様の責任のもとに発信されております。
不動産の賃借、購入に関しては賃借者、購入者ご自身が情報を確認され、会社企業様から説明を受けられたうえで判断をお願いいたします。
不動産検索サイト「らくすむ」及び関連サイトに記載の不動産情報、写真、デザイン、コンテンツなどの無断転載・転用・複製など禁止します。