
下条町中古住宅 詳細
お気に入り
追加済み
物件画像を詳しく見る

広い敷地、2世帯同居も可能なゆとりのある間取り、小学校まで225mの閑静な住宅街、価格については応談可能ですので是非ご検討ください。
物件概要
広い敷地、2世帯同居も可能なゆとりのある間取り、小学校まで225mの閑静な住宅街、価格については応談可能ですので是非ご検討ください。
-
物件コード
00068-200107
-
物件名
下条町中古住宅
-
交通
駅:信越線 宮内駅から徒歩25分、バス:NTT前から徒歩3分
-
所在地
新潟県長岡市下条町1462-2
物件へのルート表示
-
物件種別
中古一戸建て
-
構造
木造鉄筋コン
-
階建
地上3階建
-
建ぺい率/容積率
70%/200%
-
建物面積
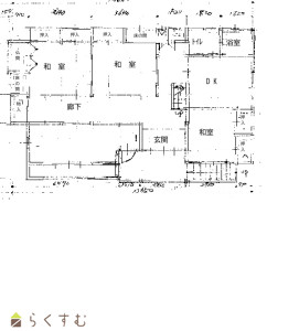
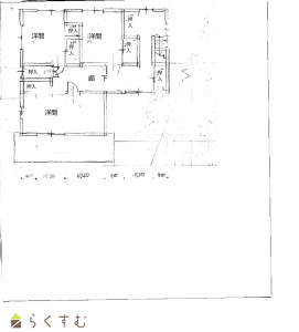
279.18㎡
/84.45坪
-
土地面積
1,119.94㎡
/338.78坪
-
築年月
1988年4月(築38年)
-
入居時期
相談
-
用途地域
用途の指定のない地域
-
地目
雑種他 (現状:宅地)
-
都市計画
市街化調整区域
-
形状
間口 20m × 奥行 55m
-
道路
長岡市道
-
私道
-
-
その他の制限
-
物件詳細情報
-
所在階/階数
-
-
号室
-
-
販売価格
12,000,000円
-
方位
-
-
間取り
6DK
-
専有面積
-
-
バルコニー面積
-
-
その他面積
-
-
駐車場
-
-
管理費
-
-
修繕積立金
-
-
現況
-
仲介手数料
462,000円
-
利用制限
-
-
学校区
上組小学校(227m)・宮内中学校(1,809m)
-
設備
-
-
取引態様
一般
-
情報登録日
2026/03/16
-
次回更新予定日
2026/06/05
-
取引条件有効期限
2026/06/30
備考
取扱い会社
有限会社 しのだ不動産
Copyright (C) 株式会社 コモンライフ・コーポレーション. All Rights Reserved.
不動産検索サイト「らくすむ」及び関連サイトに記載の不動産情報は、会員規約に則り、情報提供会社様の責任のもとに発信されております。
不動産の賃借、購入に関しては賃借者、購入者ご自身が情報を確認され、会社企業様から説明を受けられたうえで判断をお願いいたします。
不動産検索サイト「らくすむ」及び関連サイトに記載の不動産情報、写真、デザイン、コンテンツなどの無断転載・転用・複製など禁止します。