
長岡市大曲戸新田売り住宅 詳細
お気に入り
追加済み
物件画像を詳しく見る
物件概要
-
物件コード
00056-200192
-
物件名
長岡市大曲戸新田売り住宅
-
交通
駅:信越線 押切駅から徒歩24分、バス:大口から徒歩10分
-
所在地
新潟県長岡市大曲戸新田38-16
物件へのルート表示
-
物件種別
中古一戸建て
-
構造
木造
-
階建
地上2階建
-
建ぺい率/容積率
60%/200%
-
建物面積
107㎡
/32.36坪
-
土地面積
193.29㎡
/58.47坪
-
築年月
2009年3月(築17年)
-
入居時期
随時入居(引き渡し)可
-
用途地域
第1種住居地域
-
地目
宅地 (現状:宅地)
-
都市計画
市街化区域
-
形状
間口 12m × 奥行 15m
-
道路
北向き公道6m 消雪道路
-
私道
-
-
その他の制限
建築基準法22条区域
物件詳細情報
-
所在階/階数
-
-
号室
-
-
販売価格
16,800,000円
-
方位
北
-
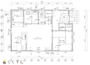
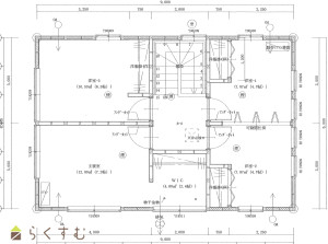
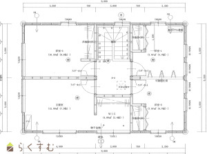
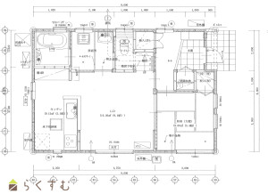
間取り
5LDK (和室:5.4畳) (洋室:7.2、6.3、4.7、4.7)、LDK9.1
-
専有面積
-
-
バルコニー面積
-
-
その他面積
-
-
駐車場
-
-
管理費
-
-
修繕積立金
-
-
現況
空家
-
仲介手数料
620,400円
-
利用制限
-
-
学校区
上通小学校(474m)・中之島中学校(4,246m)
-
設備
閑静な住宅街、駐車2台可能、駐車3台以上可能、システムキッチン、カウンターキッチン、IHクッキングヒーター、追いだき機能付き、バス1坪以上、温水洗浄便座、シャワー付き洗面台、エアコンあり、オール電化、上水道、下水道
-
取引態様
一般
-
情報登録日
2025/08/18
-
次回更新予定日
2026/06/05
-
取引条件有効期限
2026/03/13
備考
ご契約後、動産撤去→ハウスクリーニングを施しお引き渡しとなります。
取扱い会社
佐藤リアルティ 株式会社
Copyright (C) 株式会社 コモンライフ・コーポレーション. All Rights Reserved.
不動産検索サイト「らくすむ」及び関連サイトに記載の不動産情報は、会員規約に則り、情報提供会社様の責任のもとに発信されております。
不動産の賃借、購入に関しては賃借者、購入者ご自身が情報を確認され、会社企業様から説明を受けられたうえで判断をお願いいたします。
不動産検索サイト「らくすむ」及び関連サイトに記載の不動産情報、写真、デザイン、コンテンツなどの無断転載・転用・複製など禁止します。