
上方 詳細
お気に入り
追加済み
物件画像を詳しく見る

2017年築、敷地80坪の5LDK中古住宅。子供たちが遊んだり、家庭菜園ができるゆったりとした庭があります。
物件概要
-
物件コード
00050-200417
-
物件名
上方
-
交通
駅:信越線 柏崎駅から徒歩45分、バス:上方(R353)から徒歩6分
-
所在地
新潟県柏崎市大字上方342番、348番2、他
物件へのルート表示
-
物件種別
中古一戸建て
-
構造
木造
-
階建
地上2階建
-
建ぺい率/容積率
70%/200%
-
建物面積
134.56㎡
/40.7坪
-
土地面積
265.5㎡
/80.31坪
-
築年月
2017年3月(築9年)
-
入居時期
相談
-
用途地域
無指定
-
地目
宅地 (現状:宅地)
-
都市計画
非線引き都市計画区域
-
形状
-
-
道路
東側:市道(除雪あり)
-
私道
-
-
その他の制限
-
物件詳細情報
-
所在階/階数
-
-
号室
-
-
販売価格
22,000,000円
-
方位
西
-
間取り
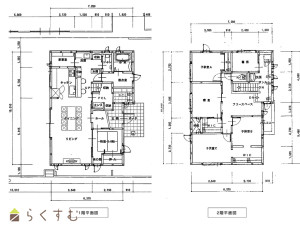
6LDK (和室:3.8畳) (洋室:5.1、5.9、6.1、4.6)、LDK19.5、書斎2.7帖
-
専有面積
-
-
バルコニー面積
-
-
その他面積
-
-
駐車場
-
-
管理費
-
-
修繕積立金
-
-
現況
空家
-
仲介手数料
792,000円
-
利用制限
-
-
学校区
新道小学校(1,019m)・南中学校(612m)
-
設備
日当り良好、閑静な住宅街、LDK15帖以上、築10年以内、駐車2台可能、駐車3台以上可能、TVインターホン、複層ガラス、デインプルキー、システムキッチン、IHクッキングヒーター、食器洗浄乾燥機、3口コンロ、追いだき機能付き、温水洗浄便座、トイレ2か所以上、シャワー付き洗面台、エアコンあり、24時間換気システム、オール電化、ウッドデッキ・テラス、上水道、下水道、ウォークインクローゼット、全居室収納あり、シューズインクローゼット
-
取引態様
専任
-
情報登録日
2025/07/07
-
次回更新予定日
2026/06/06
-
取引条件有効期限
2025/12/26
備考
取扱い会社
八幡開発株式会社
Copyright (C) 株式会社 コモンライフ・コーポレーション. All Rights Reserved.
不動産検索サイト「らくすむ」及び関連サイトに記載の不動産情報は、会員規約に則り、情報提供会社様の責任のもとに発信されております。
不動産の賃借、購入に関しては賃借者、購入者ご自身が情報を確認され、会社企業様から説明を受けられたうえで判断をお願いいたします。
不動産検索サイト「らくすむ」及び関連サイトに記載の不動産情報、写真、デザイン、コンテンツなどの無断転載・転用・複製など禁止します。