
関原町1丁目売地 詳細
お気に入り
追加済み
物件画像を詳しく見る

宅地内、無料井戸水有り、畑使用向きです。
物件概要
-
物件コード
00032-200118
-
物件名
関原町1丁目売地
-
交通
駅:信越線 来迎寺駅から徒歩82分、バス:県立歴史博物館から徒歩11分
-
所在地
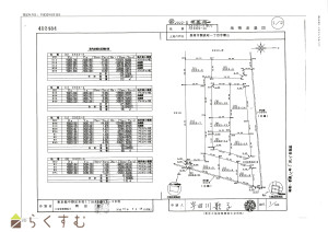
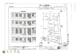
新潟県長岡市関原町1丁目2322-3
物件へのルート表示
-
物件種別
売土地・分譲地
-
物件区分
売土地
-
構造
-
-
階建
-
-
建ぺい率/容積率
70%/200%
-
建物面積
-
-
土地面積
113㎡
/34.18坪
-
築年月
-
-
入居時期
随時入居(引き渡し)可
-
用途地域
用途の指定のない地域
-
地目
山林 (現状:畑)
-
都市計画
市街化調整区域
-
形状
間口 11.14m × 奥行 10.32m
-
道路
-
-
私道
-
-
その他の制限
-
物件詳細情報
-
所在階/階数
-
-
号室
-
-
販売価格
700,000円
-
方位
-
-
間取り
-
-
専有面積
-
-
バルコニー面積
-
-
その他面積
-
-
駐車場
-
-
管理費
-
-
修繕積立金
-
-
現況
更地
-
仲介手数料
330,000円
-
利用制限
-
-
学校区
関原小学校(1,607m)・関原中学校(905m)
-
設備
角地、整形地、所有権
-
取引態様
一般
-
情報登録日
2026/03/27
-
次回更新予定日
2026/04/22
-
取引条件有効期限
2026/07/25
備考
取扱い会社
青旺不動産 株式会社
Copyright (C) 株式会社 コモンライフ・コーポレーション. All Rights Reserved.
不動産検索サイト「らくすむ」及び関連サイトに記載の不動産情報は、会員規約に則り、情報提供会社様の責任のもとに発信されております。
不動産の賃借、購入に関しては賃借者、購入者ご自身が情報を確認され、会社企業様から説明を受けられたうえで判断をお願いいたします。
不動産検索サイト「らくすむ」及び関連サイトに記載の不動産情報、写真、デザイン、コンテンツなどの無断転載・転用・複製など禁止します。