
弥彦村大字山崎中古住宅 詳細
お気に入り
追加済み
物件画像を詳しく見る

小学校に近いです。
物件概要
-
物件コード
00032-200114
-
物件名
弥彦村大字山崎中古住宅
-
交通
駅:弥彦線 矢作駅から徒歩9分、バス:水道町から徒歩35分
-
所在地
新潟県西蒲原郡弥彦村山崎1256-9
物件へのルート表示
-
物件種別
中古一戸建て
-
構造
木造
-
階建
地上2階建
-
建ぺい率/容積率
70%/200%
-
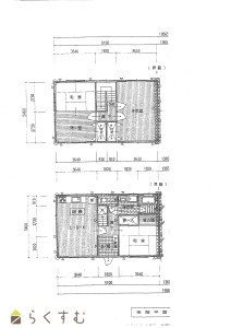
建物面積
99.36㎡
/30.05坪
-
土地面積
157.22㎡
/47.55坪
-
築年月
1999年7月(築26年)
-
入居時期
随時入居(引き渡し)可
-
用途地域
用途の指定のない地域
-
地目
宅地 (現状:宅地)
-
都市計画
市街化区域
-
形状
間口 2.6m × 奥行 18.5m
-
道路
私道
-
私道
接道は私道(位置指定道路)の為所有権(1/2)を取得します。
-
その他の制限
-
物件詳細情報
-
所在階/階数
-
-
号室
-
-
販売価格
9,500,000円
-
方位
南西
-
間取り
4LDK (和室:6畳、6畳) (洋室:6、12)、12
-
専有面積
-
-
バルコニー面積
-
-
その他面積
-
-
駐車場
-
-
管理費
-
-
修繕積立金
-
-
現況
空家
-
仲介手数料
379,500円
-
利用制限
-
-
学校区
弥彦小学校(227m)・弥彦中学校(721m)
-
設備
日当り良好、閑静な住宅街、駐車3台以上可能、ガスコンロ設置可能、追いだき機能付き、温水洗浄便座、シャワー付き洗面台、エアコンあり、都市ガス、上水道、下水道、床下収納、シューズBOX、内装リフォーム済み、即引き渡し可能
-
取引態様
一般
-
情報登録日
2025/04/28
-
次回更新予定日
2025/10/26
-
取引条件有効期限
2025/07/25
備考
旗竿地ですので縦列駐車となります。
取扱い会社
青旺不動産 株式会社
Copyright (C) 株式会社 コモンライフ・コーポレーション. All Rights Reserved.
不動産検索サイト「らくすむ」及び関連サイトに記載の不動産情報は、会員規約に則り、情報提供会社様の責任のもとに発信されております。
不動産の賃借、購入に関しては賃借者、購入者ご自身が情報を確認され、会社企業様から説明を受けられたうえで判断をお願いいたします。
不動産検索サイト「らくすむ」及び関連サイトに記載の不動産情報、写真、デザイン、コンテンツなどの無断転載・転用・複製など禁止します。