
オーベルジュ福山A 詳細
お気に入り
追加済み
物件画像を詳しく見る

入居者用Wi-Fi有
物件概要
-
価格
20,000,000円
-
利回り
14.04%
※表面利回り(満室想定時)
-
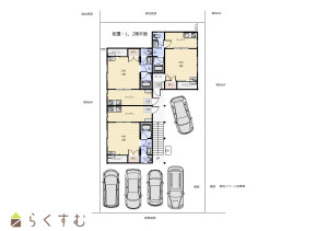
広さ
土地:245.29㎡
/74.2坪
-
建物:183.85㎡
/55.61坪
-
住所
新潟県長岡市福山町
物件へのルート表示
-
物件コード
00031-200168
-
物件名
オーベルジュ福山A
-
交通
駅:信越線 宮内駅から徒歩66分、バス:南七日町から徒歩5分
-
所在地
新潟県長岡市福山町
物件へのルート表示
-
物件種別
投資物件・その他
-
物件区分
1棟売りマンション・アパート
-
構造
木造
-
階建
地上2階建
-
建ぺい率/容積率
60%/200%
-
建物面積
183.85㎡
/55.61坪
-
土地面積
245.29㎡
/74.2坪
-
築年月
1992年4月(築34年)
-
入居時期
相談
-
用途地域
第1種低層住居専用地域
-
地目
宅地
-
都市計画
市街化区域
-
形状
間口 11.58m × 奥行 21.05m
-
道路
公道
-
私道
-
-
その他の制限
建基法22条地域
物件詳細情報
-
所在階/階数
-
-
号室
-
-
販売価格
20,000,000円
-
表面利回り
(満室想定時)
14.04%
-
満室想定年収
2,808,000円
(想定月収:
234,000円
)
-
現行利回り
11.76%
-
現行年間年収
2,352,000円
-
住戸数
6
-
方位
-
-
間取り
1K
-
専有面積
31.81㎡
/9.62坪
~
31.81㎡
/9.62坪
-
バルコニー面積
-
-
その他面積
-
-
駐車場
駐車場無料
-
管理費
-
-
修繕積立金
-
-
現況
賃貸中
-
仲介手数料
726,000円
-
利用制限
ペット:可
-
学校区
日越小学校(755m)・西中学校(1,108m)
-
設備
駐車場(近隣含む)、公営水道、都市ガス、下水道、事業向け
-
取引態様
一般
-
情報登録日
2025/07/07
-
次回更新予定日
2026/04/17
-
取引条件有効期限
2025/11/30
備考
取扱い会社
株式会社 ウェルネスホーム
Copyright (C) 株式会社 コモンライフ・コーポレーション. All Rights Reserved.
不動産検索サイト「らくすむ」及び関連サイトに記載の不動産情報は、会員規約に則り、情報提供会社様の責任のもとに発信されております。
不動産の賃借、購入に関しては賃借者、購入者ご自身が情報を確認され、会社企業様から説明を受けられたうえで判断をお願いいたします。
不動産検索サイト「らくすむ」及び関連サイトに記載の不動産情報、写真、デザイン、コンテンツなどの無断転載・転用・複製など禁止します。